Sierra Apartment Suite

Product Description

The Sierra Suite was created by Thermosash to meet the demanding needs for a high performing window and door suite for low to high rise apartment buildings. The Research and Development for this suite was inspired from the long-standing outstanding performance of our Delta suite. This re-engineered suite is specifically designed to meet New Zealand’s very high wind pressure code requirements, seismic resilience, high performing acoustic and of equal importance, modern contemporary looks required in high end residential, apartment and hotel applications.

Type and Frame Size

Fixed window frames

  • 41mm (non-seismic) | 61mm Seismic.

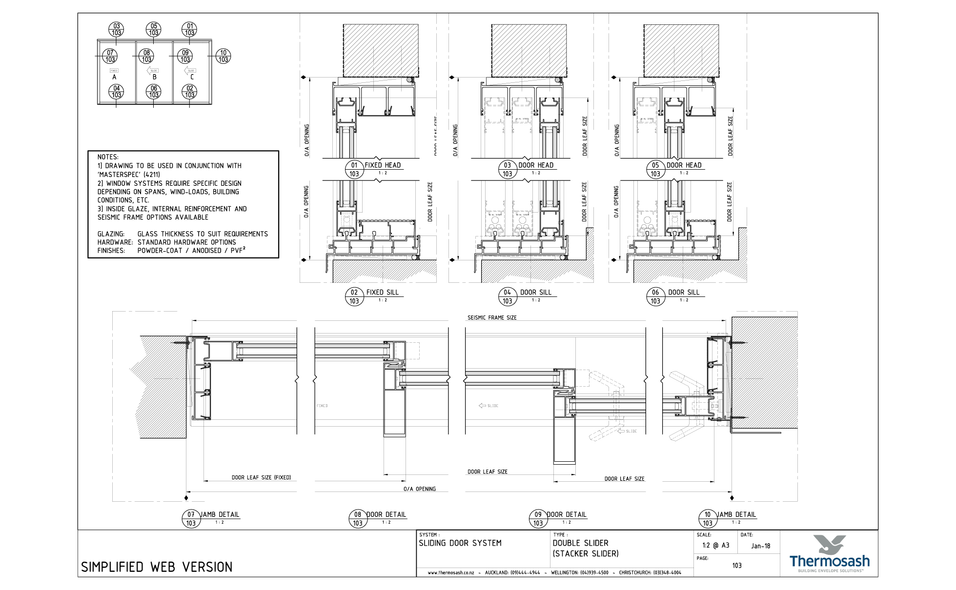
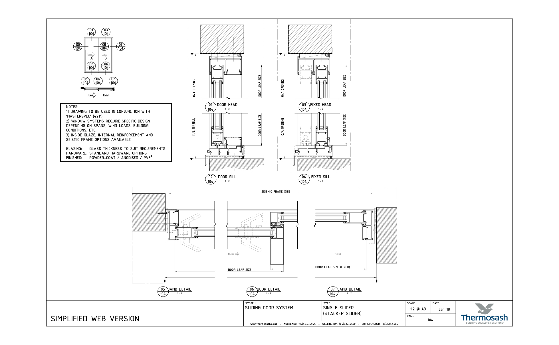
Sliding Doors

  • maximum panel size: 2700mm high x 1500mm wide can be easily achieved (subject to projects WL)

Awning / inserts

  • 30mm.

Hinged Doors

  • 47mm Heavy Duty.

All windows and doors can be integrated - Refer drawing details for correct set outs, rebates and flashing details etc.

Low carbon aluminium - specify Thermosash DecarbalTM

Our Thermosash DecarbalTM aluminium achieves a very low carbon footprint that significantly outperforms readily available local & global alternatives - offering reduced upfront carbon emissions that positively contribute to sustainability project goals. For up-to-date carbon figures please contact us. Find out more about our Sustainable Aluminium.

Performance / Testing

  • AS/NZS1170 (Structural Design Actions)
  • NZS4211 (Performance of Windows)
  • NZS4223 (Glazing in Buildings)
  • NZS/AS4284:2008 (Water / Air Pressure/ Air Leakage - Meets and exceeds minimum requirements)

Maximum Spanning Ability

Thermosash specifically engineers the best suite option for your project taking into consideration span, structural system, and environmental loads (e.g. wind and seismic). The spanning ability will vary depending on the above. 

Thermosash Suites are recognised as having the largest spanning systems on the market due to our specific engineering capability and the customised nature of the work we complete.

Warranty

Generally, the standard warranty is 10 years from the date of practical completion for these products. This covers workmanship and weather tightness, providing the subcontract includes fabrication, installation and glazing of all components, and the maintenance schedule is adhered to.

Maintenance

Maintaining glass, metals and stone are all particular to the environment that they are placed in: e.g. marine, environmental pollution, exposure to natural washing, etc.

It is recommended by almost all material suppliers that building washing should occur every 3-6 months to prevent staining to glass and prevent environmental pollutants from corroding metals and to maintain the material warranties.

A full maintenance manual is provided on completion of a project for all the elements integrated within a project. Compliance to a maintenance schedule is essential to maintaining the quality of the installed product over time. Using Thermosash-approved facade maintenance contractor/personnel ensures the highest standards are met.

Read more Read less

Key Features

  • An extremely versatile product - outer frame construction - tenoned in a unique manner to provide a very strong and twist-free connection which removes the reliance on assembly screws for strength and small joint sealant for weathering of fabricated joints.
  • Ability to integrate seamlessly with our other high performing window systems.
  • Best acoustics and weatherproofing are achieved with the sliding door configurations.
  • Integrated range - can be fitted with awning, casement, sliding sashes and doors all within the same frame design - inside / outside glazed
  • Available in seismic frame.
  • The system is generally dry glazed with high quality Santoprene gaskets.
  • Glazing rebates to accommodate double glazed units (DGU / IGU) up to 28mm comply with minimum required commercial glass engagements and edge clearances for sophisticated high performance architectural glass products (particularly insulated glass units). An important design requirement to obtain glass warranties.
  • Windows integrate with perimeter seismic frames and (where required) seismic transoms to meet specified vertical or horizontal building movements (internally or externally glazed). This generally enables installation of the product in high-rise applications from within the building, removing the need for costly external scaffolding.
  • Specifically designed extruded sill trays are provided on all products to ensure rainscreen pressure equalised drainage principles are maintained. This design feature ensures fixings do not penetrate critical weathering lines and is particularly important with long-run coupled strip window units, a common feature on commercial window projects.

Specification

We recommend using Masterspec 4521TS Thermosash Commercial Windows & Doors when specifying this suite.

 

CAD Downloads

Sierra Apartment Suite - Single Slider - 2 Fixed Light

Download files

Sierra Apartment Suite - Single Stacker Slider

Download files

Sierra Apartment Suite - Double Stacker Slider

Download files

Sierra Apartment Suite - Bi-Parting Slider

Download files

Finishes

  • Polyester powdercoat  - Both standard and high performance coatings available.
  • Anodised - All anodised colours available - commercial grade 20 micron finish recommended.
  • PVF2 Flourocarbon finishes - Available on request.

Relevant Projects

132 Halsey Street

132 Halsey Street

Auckland

Athfield Architects Ltd

Haydn & Rollett Construction Ltd

2019