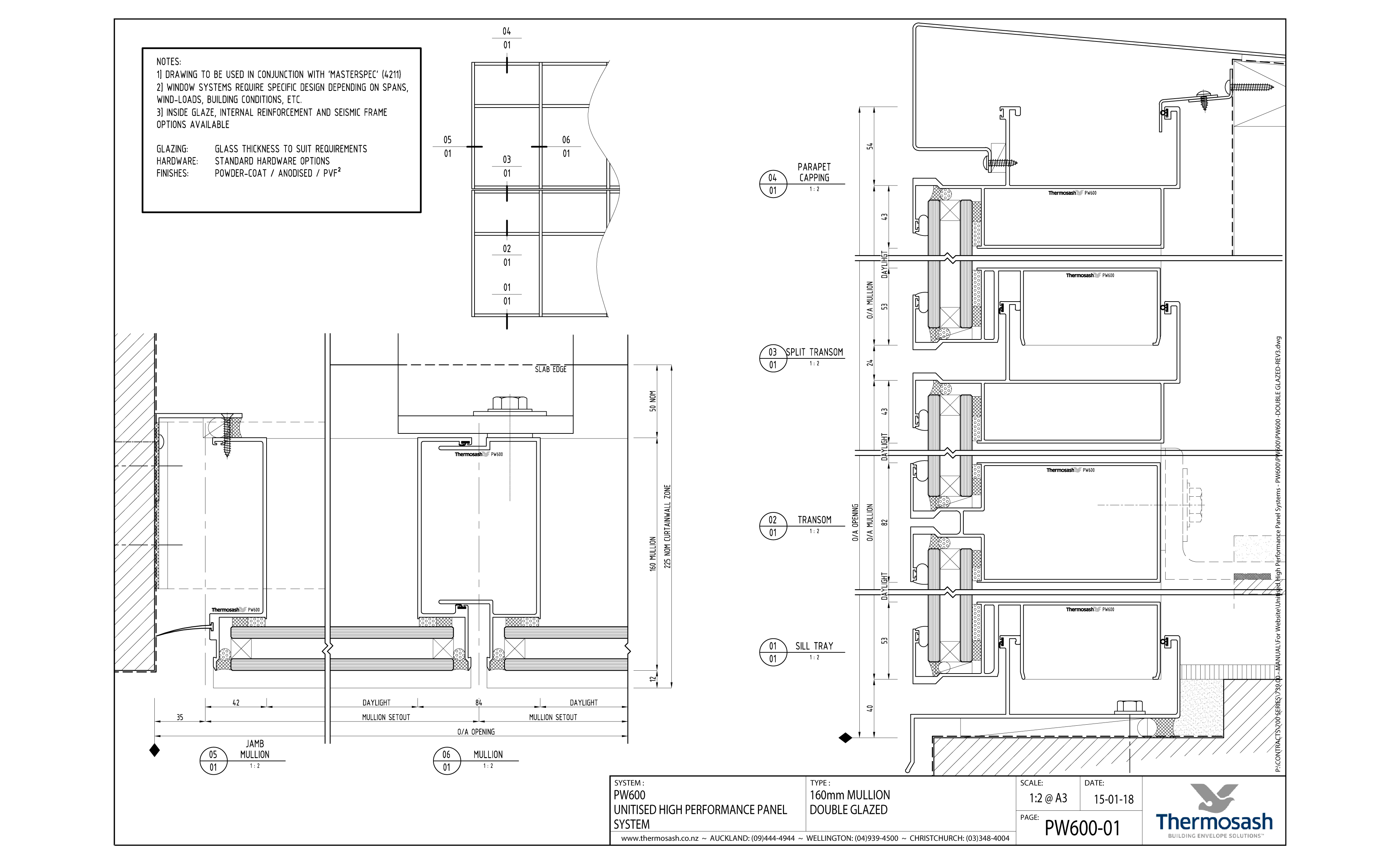
PW600

Product Description

Thermosash PW600 : two sided structurally glazed curtainwall with mechanically engaged expressed horizontal transom elements, providing an accent on the horizontal aspect of the building façade.

The PW Series Suites have been extensively used and proven in New Zealand and our export markets since 1985. The advantage of this system is whilst it utilises a mullion system internally to hold the glass (structurally glazed) or other elements, the transoms are expressed, mechanically encapturing the glass, offering a potentially smooth surface across the building between transom lines generally free from any visible aluminium structural element.

Section Sizes: 75mm / 100mm / 150mm / 200mm

We have the ability where necessary, to structurally supplement the sections where the suite is exposed to high floor to floor spans or high wind zones, thus potentially reducing the need for additional primary or secondary structure to be provided by the Main Contractor.

Integrated Elements

  • brackets to receive externally mounted fins, louvres, Venetians, custom feature elements, or building signage
  • opening sashes suitable for high-rise installations can be accommodated
  • a large variety of materials can be integrated into a unitised panel, including:
    • different glass types
    • metals
    • terracotta tiles
    • large format porcelain
    • glass reinforced concrete (GRC)

Maximum Spanning Ability

The spanning ability will vary depending on the structural system and environmental loads (e.g. wind).  Thermosash specifically engineers the best suite options to meet project requirements.

Engineering

We custom design all our suites to suit our projects to maximise the efficiencies within the suite and often to incorporate added elements or unique building structures, building movements or floor heights.

Low carbon aluminium - specify Thermosash DecarbalTM

Our Thermosash DecarbalTM aluminium achieves a very low carbon footprint that significantly outperforms readily available local & global alternatives - offering reduced upfront carbon emissions that positively contribute to sustainability project goals. For up-to-date carbon figures please contact us. Find out more about our Sustainable Aluminium.

Pressure equalised design

The weathering design of these curtainwall suites follows recognised international curtainwall design principles - rainscreen pressure equalisation and system drainage - which requires primary and secondary weathering. 

All internal cavities of the system are designed to be pressure equalised (i.e. no pressure differential between the outside face and any internal cavity). This feature allows the water which penetrates the rainscreen to drain and maintain ventilation. The rear air seal is critical to the system's weathering performance as air infiltration acts as the medium which transports water through to the building's interior, i.e. it is the prime cause of any leakage.

Non-vision rainscreen areas act as a primary water-stop, the second airseal and cavity acts as a backup to collect and drain away any water that manages to penetrate the primary rainscreen barrier, with an integral structural backpan.

Installation

Our systems are prefabricated and glazed in a factory environment, stored if necessary, and transported for just-in-time site delivery. We have highly skilled installation teams who work safely and effectively to close in buildings rapidly.

These prefabricated and glazed panels are delivered to the floors in crates and positioned by floor mounted cranes or monorail units. The panels have interlocking legs, requiring sequential placement around the building floor before the next level can be installed.

It is highly recommended that the units are installed from ground up in predetermined directional order to maintain the best detail connection between panels. Special methodologies need to be considered when recladding a building demands a top-down approach.

Curtainwall is almost always hung from the top of each floor section (dead loaded) and attached at the base of the unit to resist windload. The Thermosash specific engineered brackets attach at each floor either on the top of the slab, to the edge of the slab or under the slab as necessitated by the project design and engineering requirements of the selected system.

Performance / Testing

Thermosash owns and operates the largest facade testing facility in New Zealand where we test our systems and custom designed suites to ensure compliance with the below codes or project specific requirements:

  • AS/NZS1170 (Structural Design Actions)
  • NZS4223 (Glazing in Buildings)
  • NZS/AS4284:2008 (Water / Air Pressure/ Air Leakage - Meets and exceeds minimum requirements)

All the Thermosash suites are independently laboratory tested to IANZ (International Accreditation New Zealand). Test certificates are available on request.

Warranty

The standard warranty is 10 years from the date of practical completion for these products. This covers workmanship and weather tightness, providing the subcontract includes fabrication, installation and glazing of all components, and the maintenance schedule is adhered to.

Maintenance

Maintaining glass, metals and stone are all particular to the environment that they are placed in e.g. marine, environmental pollution, exposure to natural washing, etc.

It is recommended by almost all material suppliers that building washing should occur every 3-6 months to prevent staining to glass and prevent environmental pollutants from corroding metals and to maintain the material warranties.

A full maintenance manual is provided on completion of a project for all the elements integrated within a project. Compliance to a maintenance schedule is essential to maintaining the quality of the installed product over time. Using Thermosash-approved facade maintenance contractor/personnel ensures the highest standards are met.

Read more Read less

Key Features

This engineered façade product is designed to accommodate:

  • building movements - both vertical and horizontal (seismic)
  • Allows for differential rates of thermal expansion and contraction
  • Connection details to accommodate construction tolerances
  • Structural member strengths comply with Code or project specification
  • Glass design and it's integration with the glazing system to ensure glass warranties are complied with

Brochures

Thermosash Unitised Facades - Total Clad Solutions

September 2025

Specification

We recommend using Masterspec 4211TS Thermosash Curtain Walling when specifying this suite.

CAD Downloads

PW600 - 160mm Mullion Double Glazed

Download files

Thermosash Curtain Wall Fixing Bracket

Download files

Finishes

  • Polyester powder coat - both standard and special colours available.
  • Anodised - all anodised colours available - commercial grade 20 micron finish recommended.
  • PVF2 Fluorocarbon finishes - available on request.

Relevant Projects

Maritime Tower

Maritime Tower

Wellington

Warren & Mahoney

Fletcher Construction

2006

Microsoft Building

Microsoft Building

Auckland

Jasmax

Scarbro Construction

2006

North Shore Hospital

North Shore Hospital

Auckland

Klein Architects

Fletcher

2010

Boulcott Hospital

Boulcott Hospital

Wellington

Craig Craig Moller Architects

Armstrong Downes

2006

D4 The Customhouse

D4 The Customhouse

Wellington

Studio of Pacific Architecture Ltd

Fletcher

2010

Quay Park

Quay Park

Auckland

Jenson Chambers Young

Manson Developments Limited

2008

Quay Plaza

Quay Plaza

Auckland

Jensen Chambers Young

Mansons Ltd

2008