PW1000

Product Description

Thermosash PW1000: four sided structurally glazed curtainwall suite designed for high-rise or lowrise applications where the project has large spans or large panes of glass requiring higher strength systems.

The suite has been extensively used and proven in New Zealand and our export markets since 1985. The advantage of this system is, whilst it utilises a mullion and transom system internally to hold the glass or other elements, the surface is generally free from any visible aluminum structural element - providing a smooth glass face.

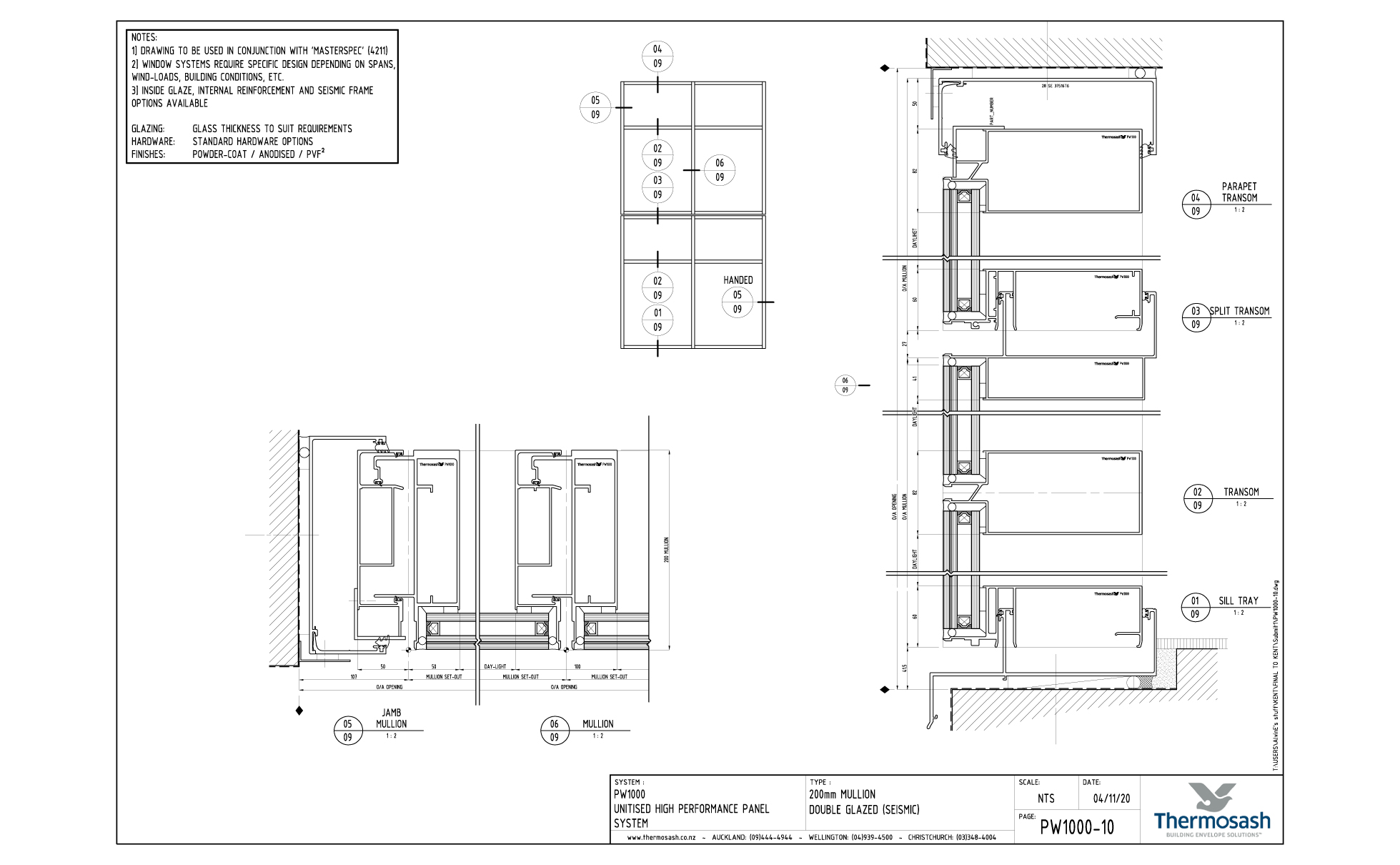
Mullion Sizes: 75mm / 100mm / 150mm / 200mm

We have the ability where necessary, to structurally supplement the sections when the suite is exposed to high floor to floor spans or high wind zones, thus potentially reducing the need for additional primary or secondary structure to be provided by the Main Contractor.

Maximum Spanning Ability

The spanning ability will vary depending on the structural system and environmental loads (e.g. wind).  Thermosash specifically engineers the best suite options to meet project requirements.

Thermosash Suites are recognized as having the largest spanning systems on the market due to our specific engineering capability and the customised nature of the work we complete.

Integrated Elements

  • brackets to receive externally mounted fins, louvres, Venetians, custom feature elements, or building signage
  • opening sashes suitable for high-rise installations can be accommodated
  • a large variety of materials can be integrated into a unitised panel, including:
    • different glass types
    • metals
    • terracotta tiles
    • large format porcelain
    • glass reinforced concrete (GRC)

Engineering Custom solutions

Thermosash design and detail the facade solution to meet project demand for seismic risk, wind loads, climate zones, corrosion zones and building importance levels as well as aesthetics, unique site constraints and budgetary requirements. We have extensive experience in integrating our systems and products to deliver a total facade solution.

Low carbon aluminium - specify Thermosash DecarbalTM

Our Thermosash DecarbalTM aluminium achieves a very low carbon footprint that significantly outperforms readily available local & global alternatives - offering reduced upfront carbon emissions that positively contribute to sustainability project goals. For up-to-date carbon figures please contact us.

Thermosash partners with a local NZ-owned extruder achieving a lower carbon footprint than the global average - offering reduced upfront carbon emissions. (find out more about our Sustainable Aluminium).

Facade Optimisation and Sustainability Reports

To achieve optimised high-performance outcomes, we offer our clients the option of a Project Sustainability Analysis that covers different aspects of the full sustainability cycle. When specifying our facade systems, clients can engage us to implement one or several of our Facade Optimisation Strategies to achieve their project sustainability goals. To gain the most from our strategies, talk to us early on in the design phase of your project.

Pressure Equalised design

The weathering design of these curtainwall suites follows recognised international curtainwall design principles - rainscreen pressure equalisation and system drainage - which requires primary and secondary weathering. 

All internal cavities of the system are designed to be pressure equalised (i.e. no pressure differential between the outside face and any internal cavity). This feature allows the water which penetrates the rainscreen to drain and maintain ventilation. The rear air seal is critical to the system's weathering performance as air infiltration acts as the medium which transports water through to the building's interior, i.e. it is the prime cause of any leakage.

Non-vision rainscreen areas act as a primary water-stop, the second airseal and cavity acts as a backup to collect and drain away any water that manages to penetrate the primary rainscreen barrier, with an integral structural backpan.

Installation

Our systems are prefabricated and glazed in a factory environment, stored if necessary, and transported for just-in-time site delivery. We have highly skilled installation teams who work safely and effectively to close in buildings rapidly.

These prefabricated and glazed panels are delivered to the floors in crates and positioned by floor mounted cranes or monorail units. The panels have interlocking legs, requiring sequential placement around the building floor before the next level can be installed.

It is highly recommended that the units are installed from ground up in predetermined directional order to maintain the best detail connection between panels. Special methodologies need to be considered when recladding a building demands a top-down approach.

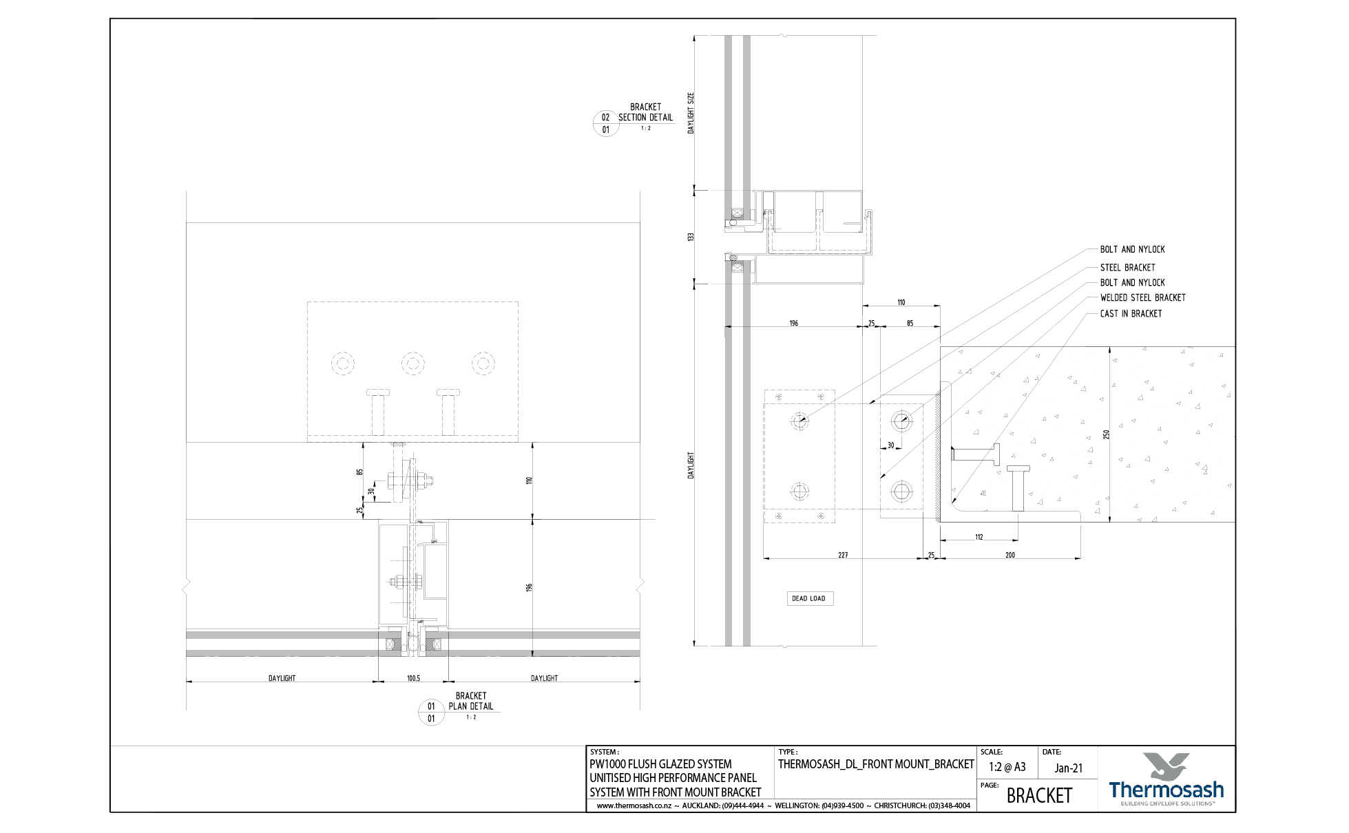
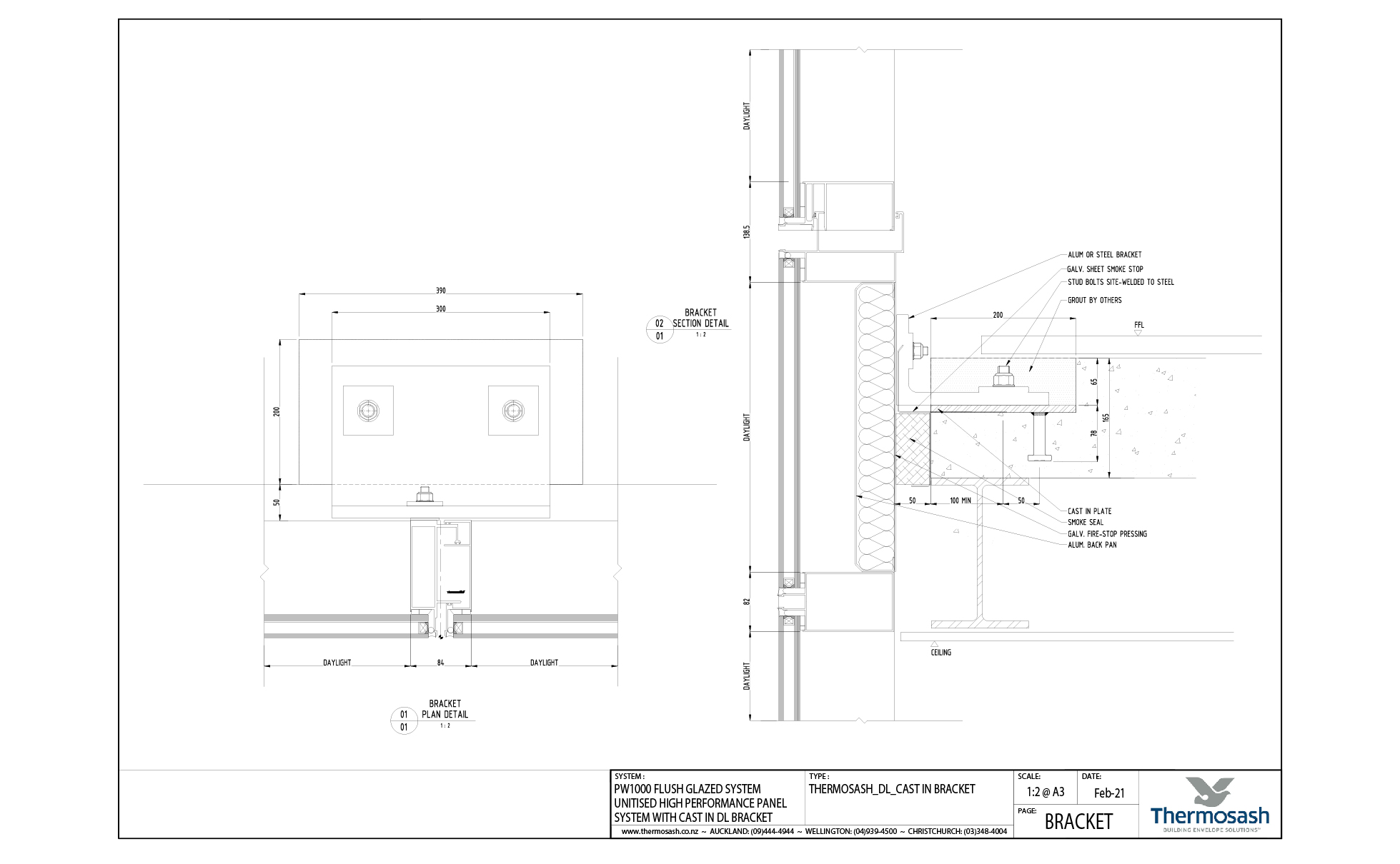
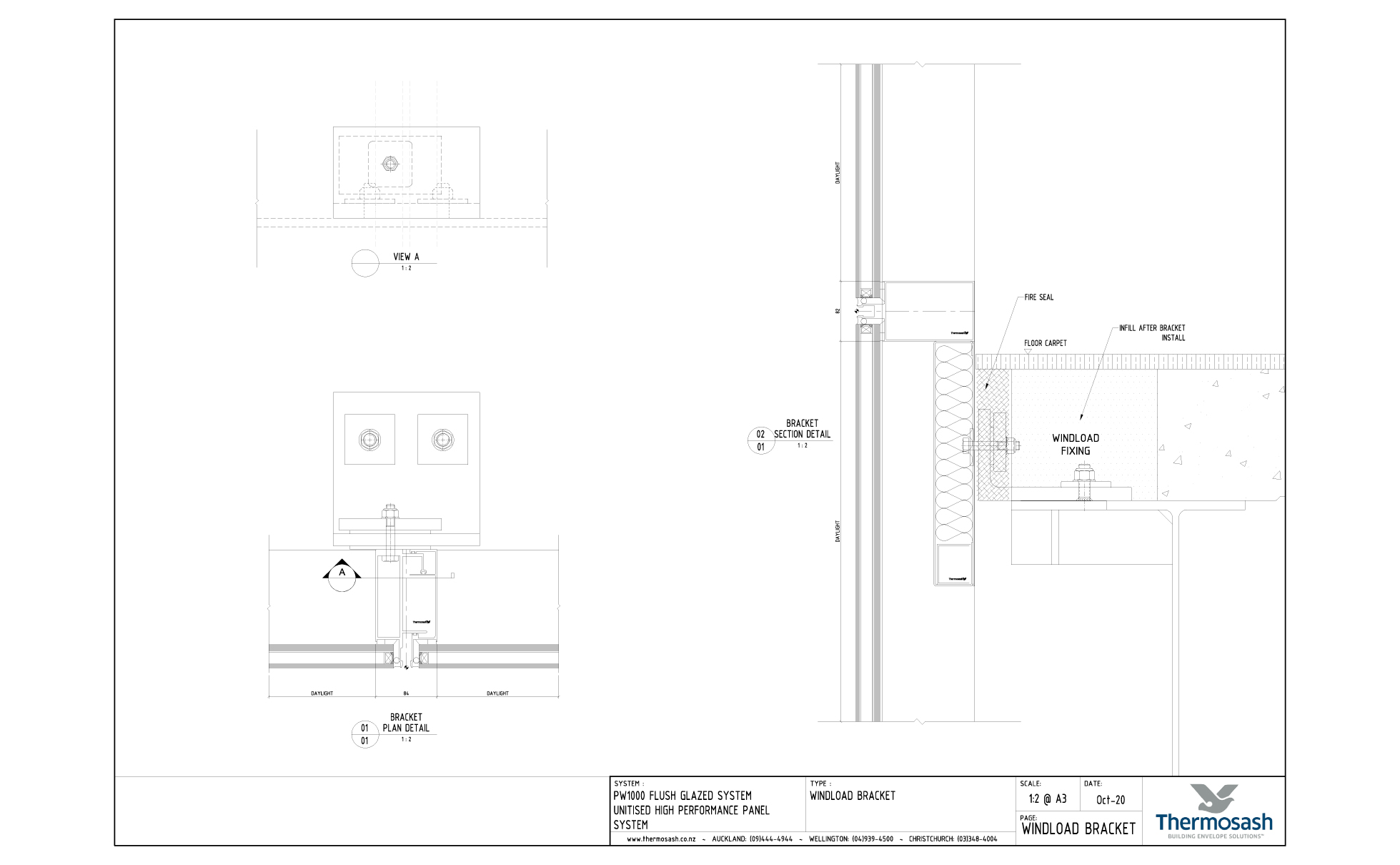
Curtainwall is almost always hung from the top of each floor section (dead loaded) and attached at the base of the unit to resist windload. The Thermosash specific engineered brackets attach at each floor either on the top of the slab, to the edge of the slab or under the slab as necessitated by the project design and engineering requirements of the selected system.

Performance / Testing

Thermosash owns and operates the largest facade testing facility in New Zealand where we test our systems and custom designed suites to ensure compliance with the below codes or project specific requirements:

  • AS/NZS1170 (Structural Design Actions)
  • NZS4223 (Glazing in Buildings)
  • NZS/AS4284:2008 (Water / Air Pressure/ Air Leakage - Meets and exceeds minimum requirements)

All the Thermosash suites are independently laboratory tested to IANZ (International Accreditation New Zealand). Test certificates are available on request.

Warranty

The standard warranty is 10 years from the date of practical completion for these products. This covers workmanship and weather tightness, providing the subcontract includes fabrication, installation and glazing of all components, and the maintenance schedule is adhered to.

Maintenance

Maintaining glass, metals and stone are all particular to the environment that they are placed in: eg. marine, environmental pollution, exposure to natural washing, etc.

It is recommended by almost all material suppliers that building washing should occur every 3-6 months to prevent staining to glass and prevent environmental pollutants from corroding metals and to maintain the material warranties.

A full maintenance manual is provided on completion of a project for all the elements integrated within a project. Compliance to a maintenance schedule is essential to maintaining the quality of the installed product over time. Using Thermosash-approved facade maintenance contractor/personnel ensures the highest standards are met.

Read more Read less

Key Features

  • unitised panels are factory prefabricated and glazed.
  • specifically engineered to accommodate the environmental conditions and design constraints of the project:
    • accommodates building movements - both vertical and horizontal (seismic).
    • accommodates differential rates of thermal expansion and contraction.
    • connection details to accommodate construction tolerances.
    • structural member strengths comply with Code or project specification.
  • glass design and its integration with the glazing system to ensure glass warranties are complied with.
  • rainscreen pressure equalisation - all internal cavities are designed to have no pressure differential between the outside face and the inside face and any internal cavity. This allows any water that penetrates the rainscreen to drain and ventilate.
  • non-vision rainscreen system areas - the rainscreen acts as a primary water-stop, the second rear airseal and cavity acts as a backup to collect and drain away water that manages to penetrate the primary barrier, with an integral structural backpan.
  • sizing of modules is generally only limited by the project design requirements, economic considerations, transport and site crane installation limitations.

Brochures

PW1000 & PW1000-TB Product Disclosure - documents package

2023

Thermosash PW1000 & PW1000-TB Unitised High Performance Curtainwall

September 2025

Thermosash Unitised Facades - Total Clad Solutions

September 2025

Specification

We recommend using Masterspec 4211TS Thermosash Curtain Walling when specifying this suite.

CAD Downloads

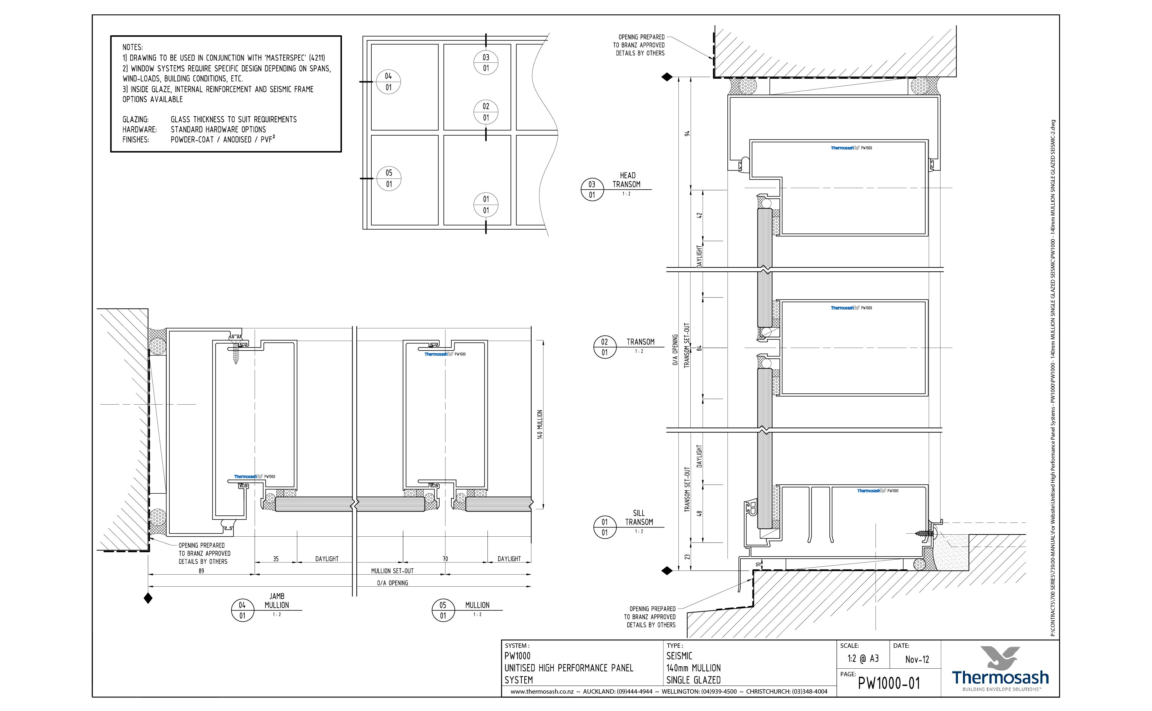
PW1000 - 140mm Mullion Single Glazed Seismic

Download files

PW1000 - 140mm Mullion Double Glazed Seismic

Download files

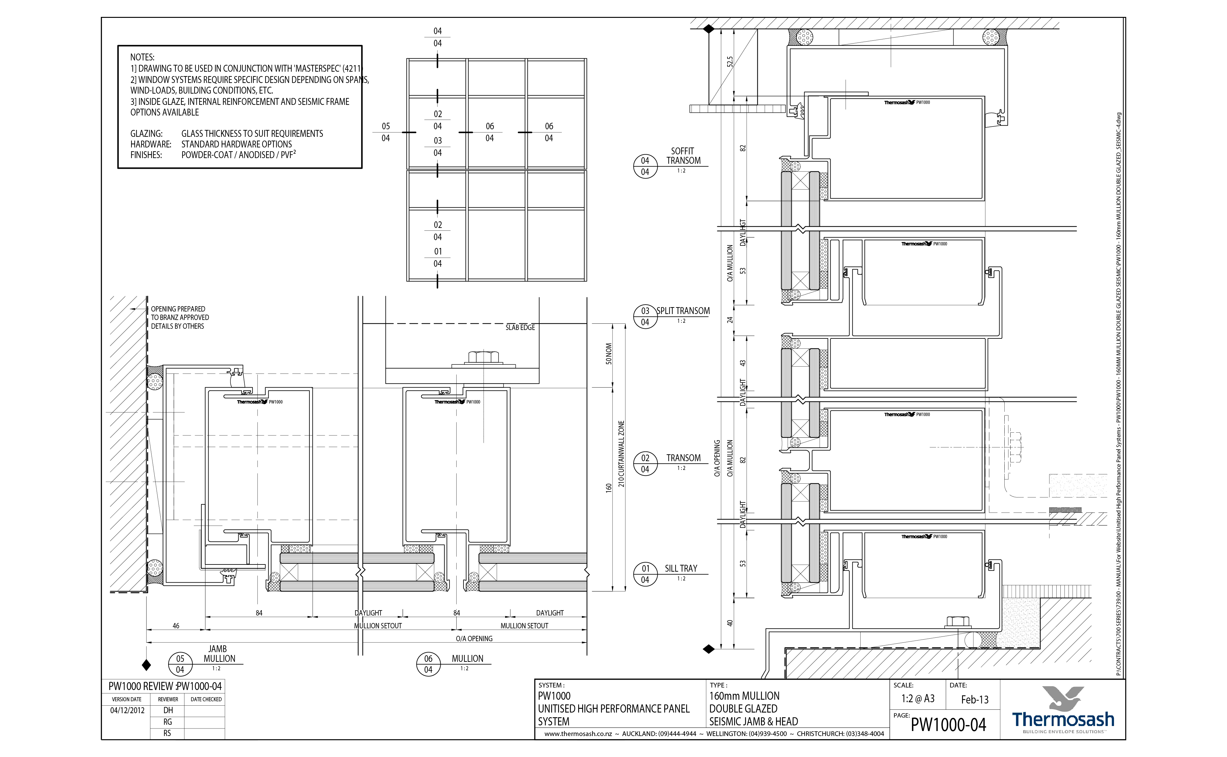
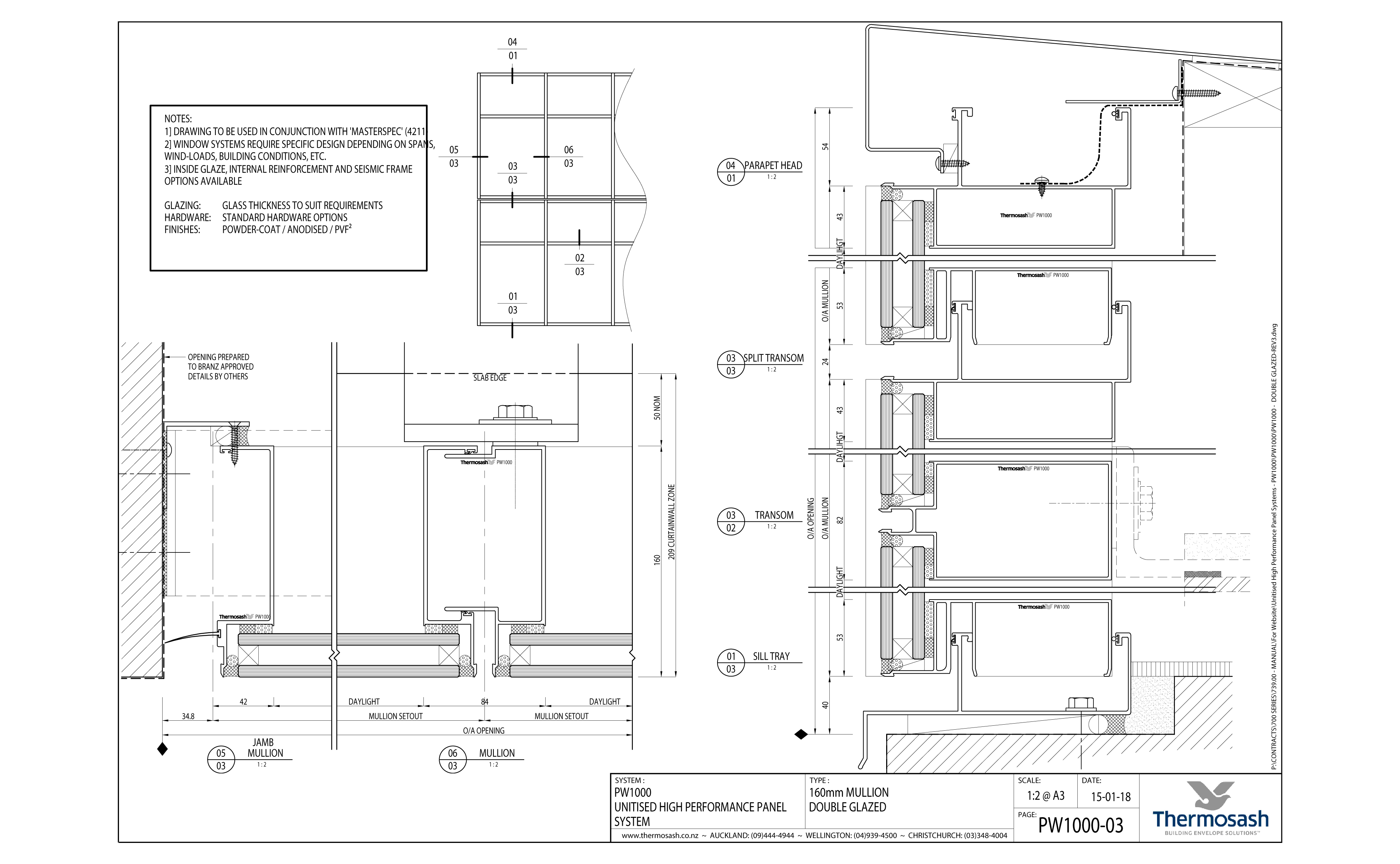
PW1000 - 160mm Mullion Double Glazed

Download files

PW1000 - 160mm Mullion Double Glazed Seismic Jamb & Head

Download files

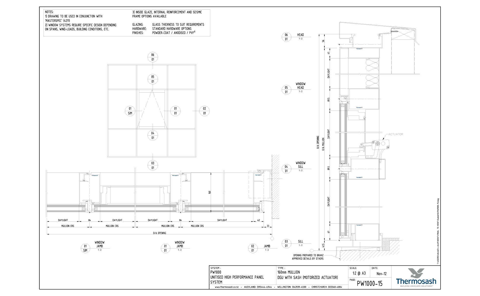
PW1000 - 160mm Mullion Double Glazed with Sash (Motorised Actuator)

Download files

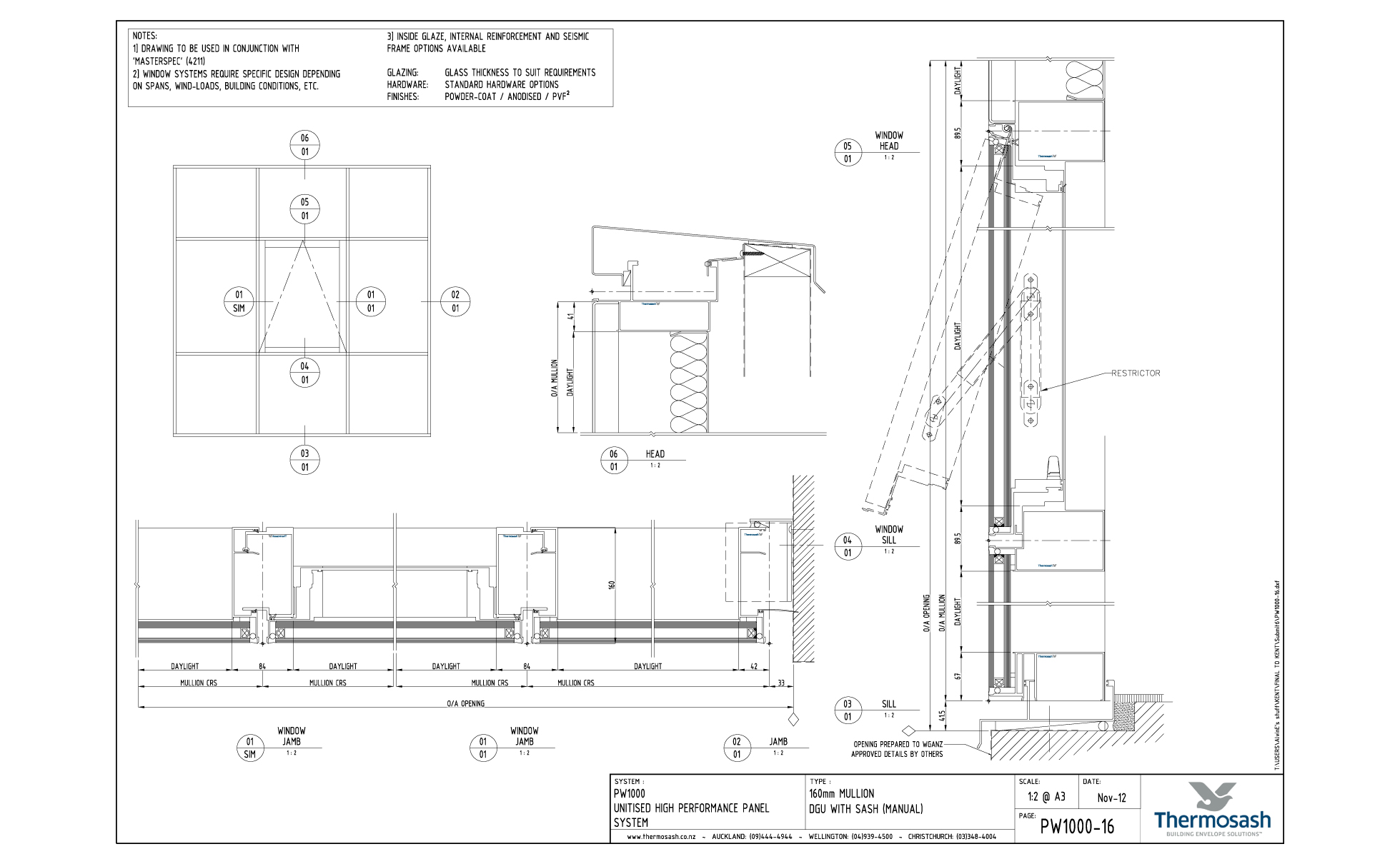
PW1000 - 160mm Mullion Double Glazed with Sash (Manual Actuator)

Download files

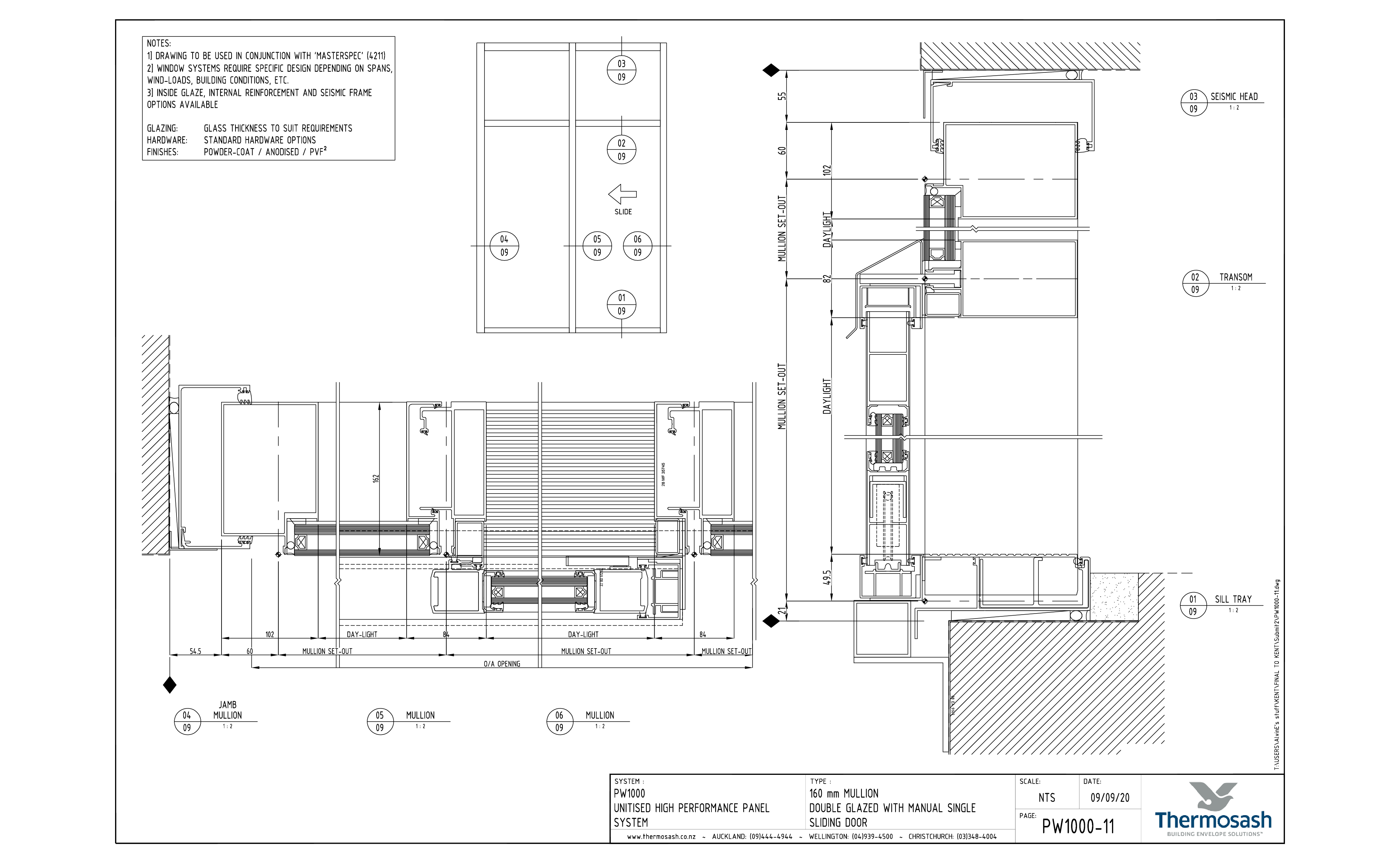
PW1000 - 160mm Mullion Double Glazed with Manual Single Slider

Download files

PW1000 - 160mm Mullion Double Glazed with Auto Slider

Download files

PW1000 - 160mm Mullion Seismic with Frameless Glass Auto Door (Single Glazed)

Download files

PW1000 - 160mm Mullion Double Glazed with Hinged Door

Download files

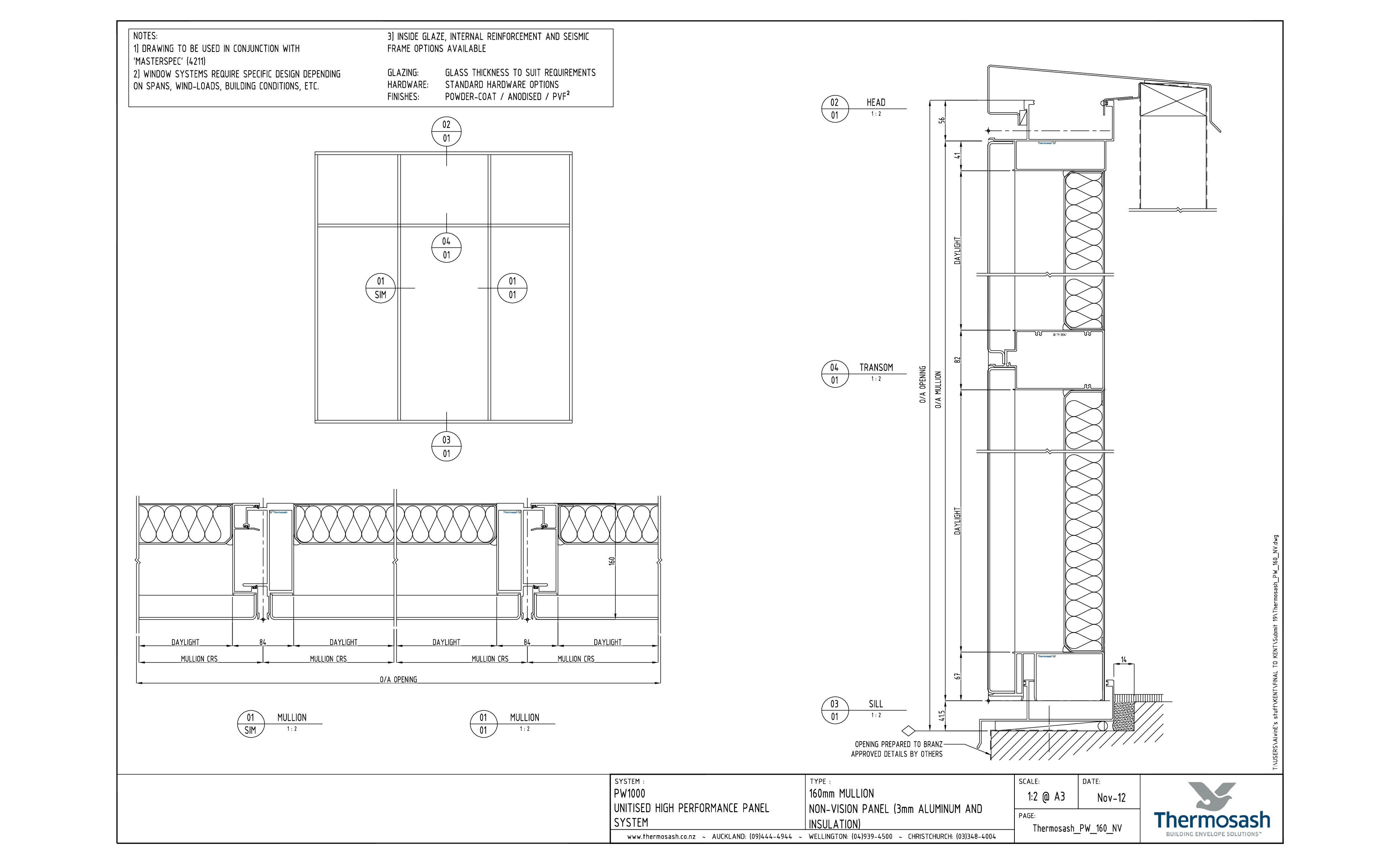
PW1000 - 160mm Mullion Non-Vision Panel

Download files

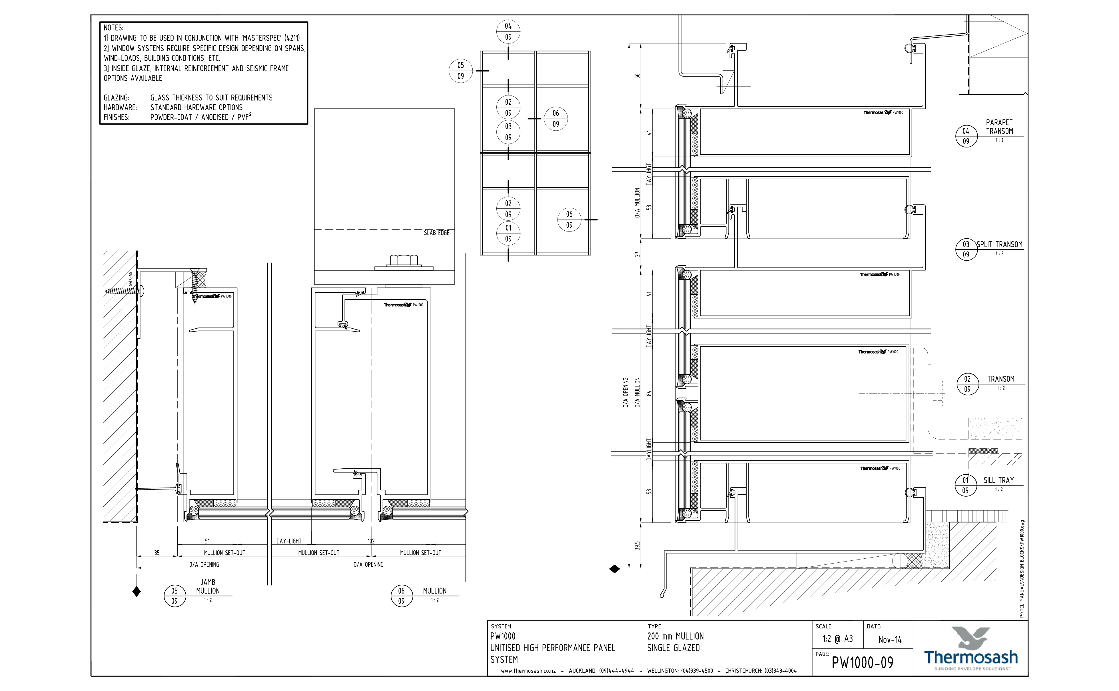
PW1000 - 200mm Mullion Single Glazed

Download files

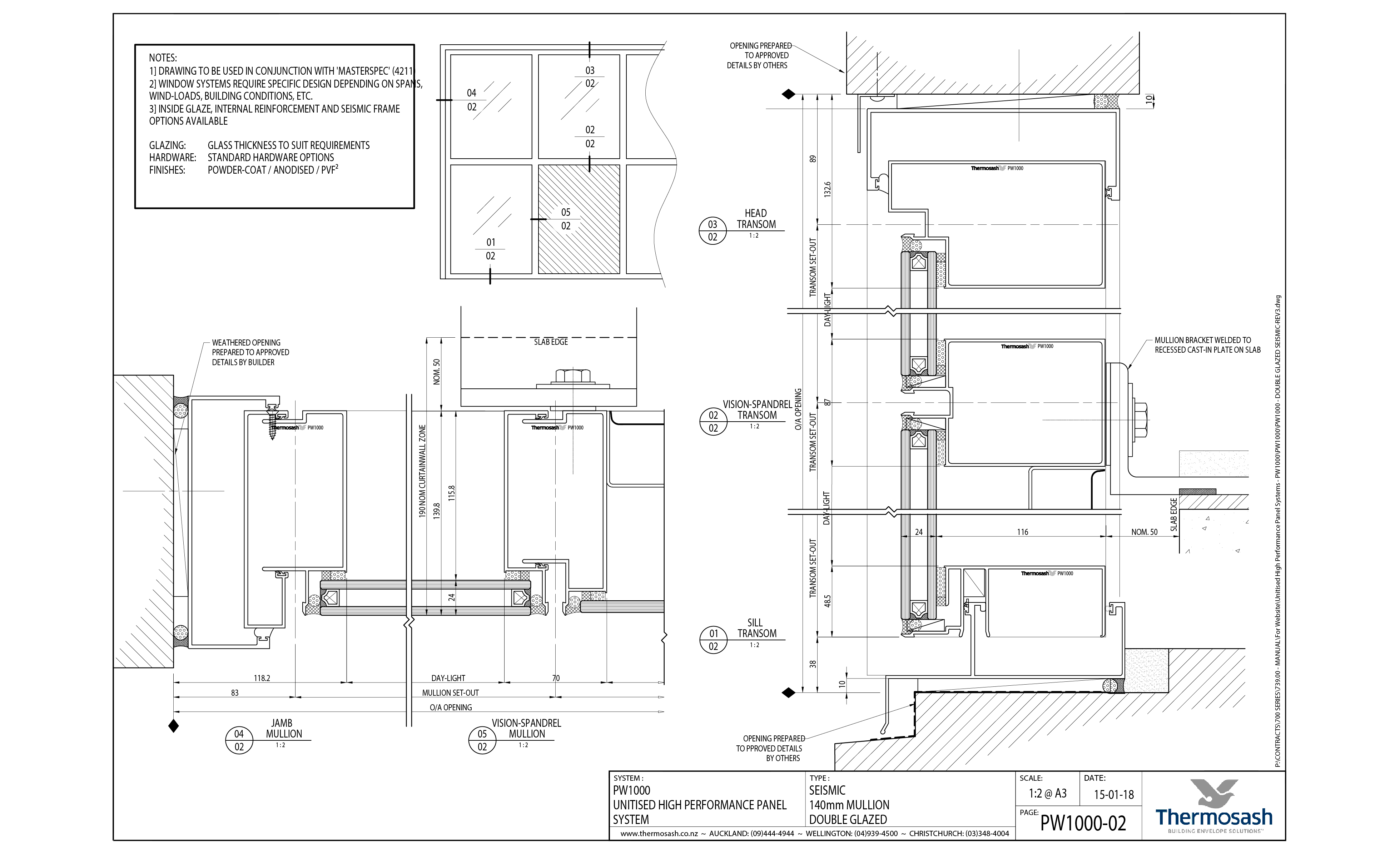
PW1000 - 200mm Mullion Double Glazed Seismic

Download files

Auto Sliding Door - PW1000 160mm Mullion Double Glazed

Download files

Frameless Single Glazed Auto Door - PW1000 Seismic 160mm Mullion

Download Files

Thermosash Curtain Wall Fixing Bracket

Download files

PW1000 - DL Cast in Bracket

Download files

PW1000 - DL Front Mount Bracket

Download files

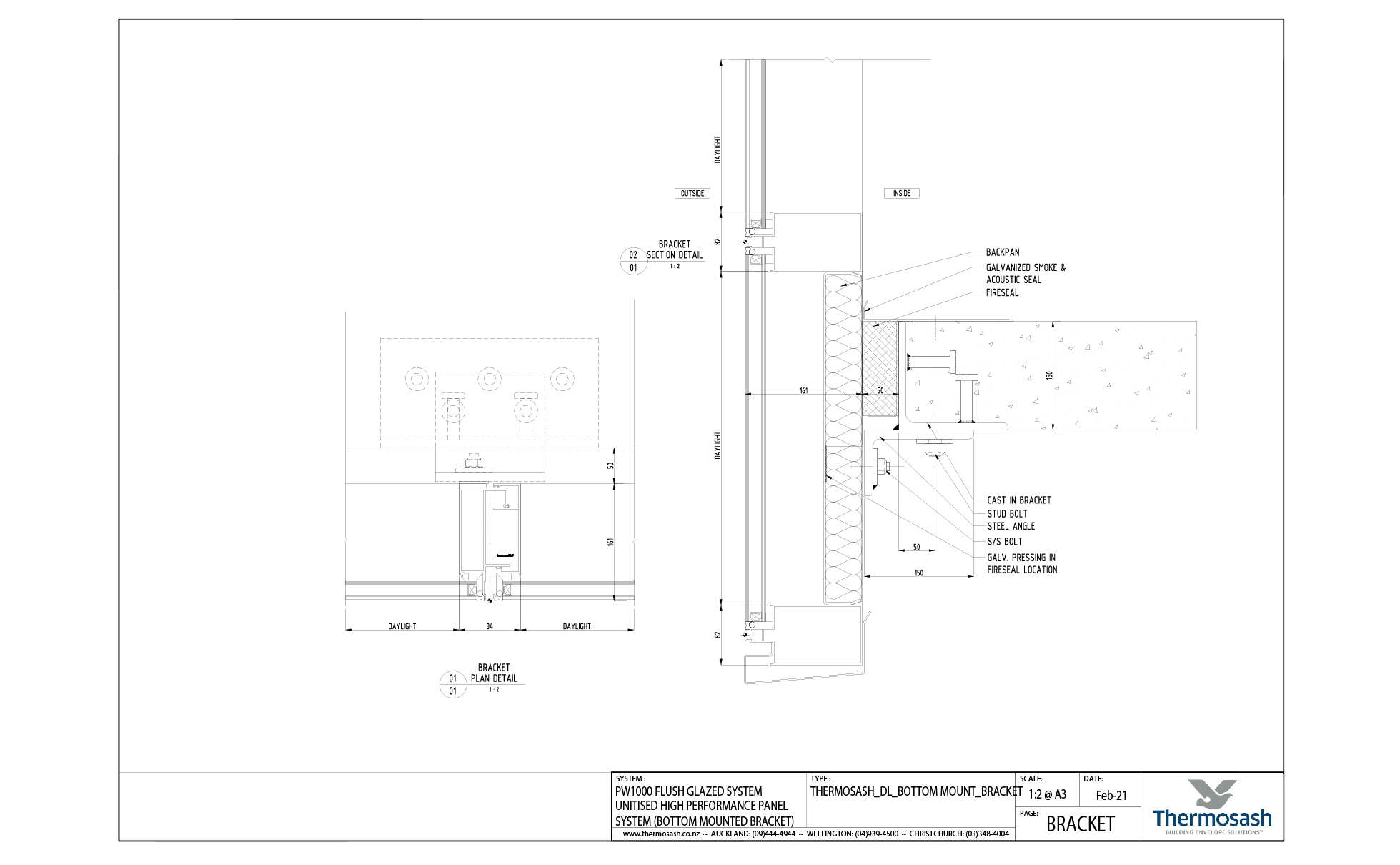
PW1000 - DL Bottom Mount Bracket

download files

PW1000 - Windload Bracket

Download files

PW1000 - Shadowbox Detail on Double Glazed Panel

Download files

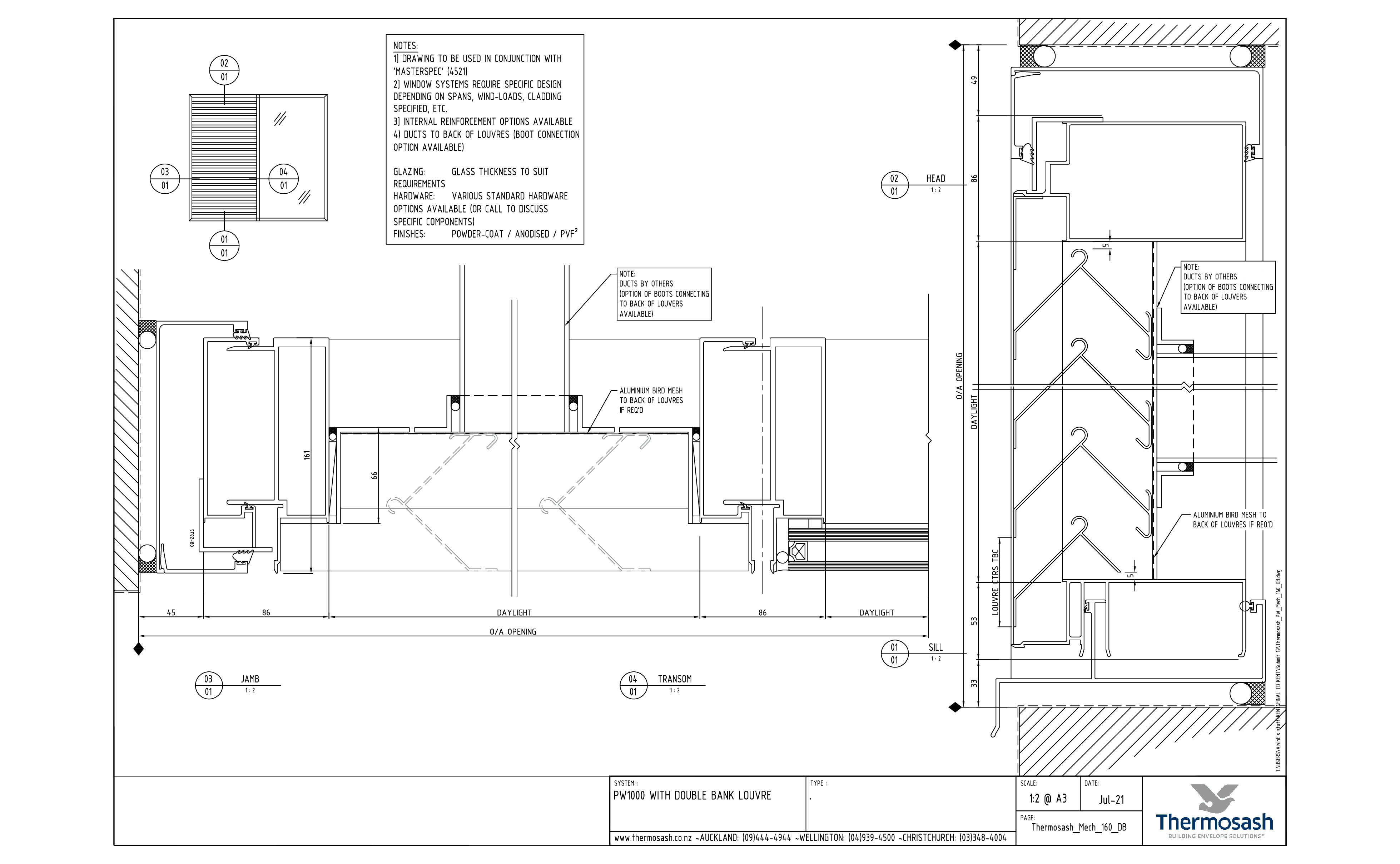
PW1000 160mm with Double Bank Louvre

Download files

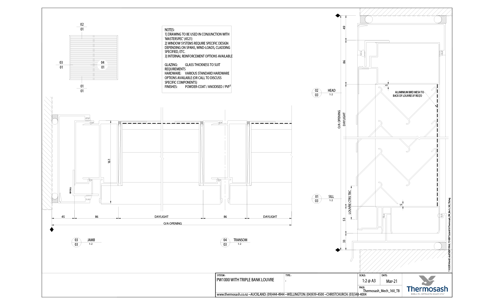
PW1000 160mm with Triple Bank Louvre

Download files

Finishes

  • Polyester powder coat - both standard and special colours available.
  • Anodised - all anodised colours available - commercial grade 20 micron finish recommended.
  • PVF2 Fluorocarbon finishes - available on request.

Relevant Projects

1 Queen Street - Deloitte Centre

1 Queen Street - Deloitte Centre

Auckland

Warren and Mahoney Architects

LT McGuinness

2024

University of Auckland - B201

University of Auckland - B201

Auckland

Jasmax

Hawkins

2023

 Te Arikinui Pullman Auckland Airport Hotel

Te Arikinui Pullman Auckland Airport Hotel

Auckland

Warren and Mahoney

Dominion Constructors

2023

Tākina Wellington Convention and Exhibition Centre

Tākina Wellington Convention and Exhibition Centre

Wellington

Studio of Pacific Architecture

LT McGuinness

2022

105 Carlton Gore Road

105 Carlton Gore Road

Auckland

designgroup Stapleton Elliot

Alaska Construction + Interiors

2023

6-8 Munroe Lane

6-8 Munroe Lane

Auckland

Ignite Architects

Icon Construction

2023

Project Hauata ACC

Project Hauata ACC

Hamilton

Warren and Mahoney

Hawkins - Waikato

2023

Mercedes-Benz - Takapuna

Mercedes-Benz - Takapuna

Auckland

Warren & Mahoney

Savory Construction

2022

Massey University Innovation Complex

Massey University Innovation Complex

Auckland

Athfield Architects

Southbase Construction

2022

Cordis Hotel

Cordis Hotel

Auckland

Jasmax

Hawkins Construction

2021

Te Ao Nui Building

Te Ao Nui Building

Palmerston North

Opus International Consultants

McMillan & Lockwood Group

2020

New Plymouth Airport

New Plymouth Airport

New Plymouth

Beca Architects

Clelands Construction

2020

UOC Beatrice Tinsley Building

UOC Beatrice Tinsley Building

Christchurch

Jasmax

Dominion Constructors Ltd

2019

Giltrap Prestige Building

Giltrap Prestige Building

Auckland

Warren & Mahoney

Hawkins

2017

Fonterra Building (Fanshawe)

Fonterra Building (Fanshawe)

Auckland

Jasmax

Fletcher

2016

Grand Central Building

Grand Central Building

Christchurch

Warren and Mahoney

Fletcher Construction

2016

Wellington Airport Southern Extension

Wellington Airport Southern Extension

Wellington

Warren & Mahoney

Hawkins Construction

2016

Mobil Exxon Project - Papua New Guinea

Mobil Exxon Project - Papua New Guinea

Papua New Guinea - Port Moresby

Kellogg Brown & Root Pty Ltd (Principal Design Consultant)

Leightons

2015

The Crossing - Building 1

The Crossing - Building 1

Auckland

Jasmax

Dominion

2013

Napier Street GHD

Napier Street GHD

Auckland

Jensen Chambers Young

Mansons TCLM

2012

Telecom Tower - Willis Street

Telecom Tower - Willis Street

Wellington

Architecture Plus

Hawkins Construction

2011

Novotel Auckland Airport

Novotel Auckland Airport

Auckland

Warren & Mahoney

Hawkins

2011

Deloitte-Auckland

Deloitte-Auckland

Auckland

Warren and Mahoney, Woods Bagot

Brookfield Multiplex

2010