Structural Glass Canopy System

Product Description

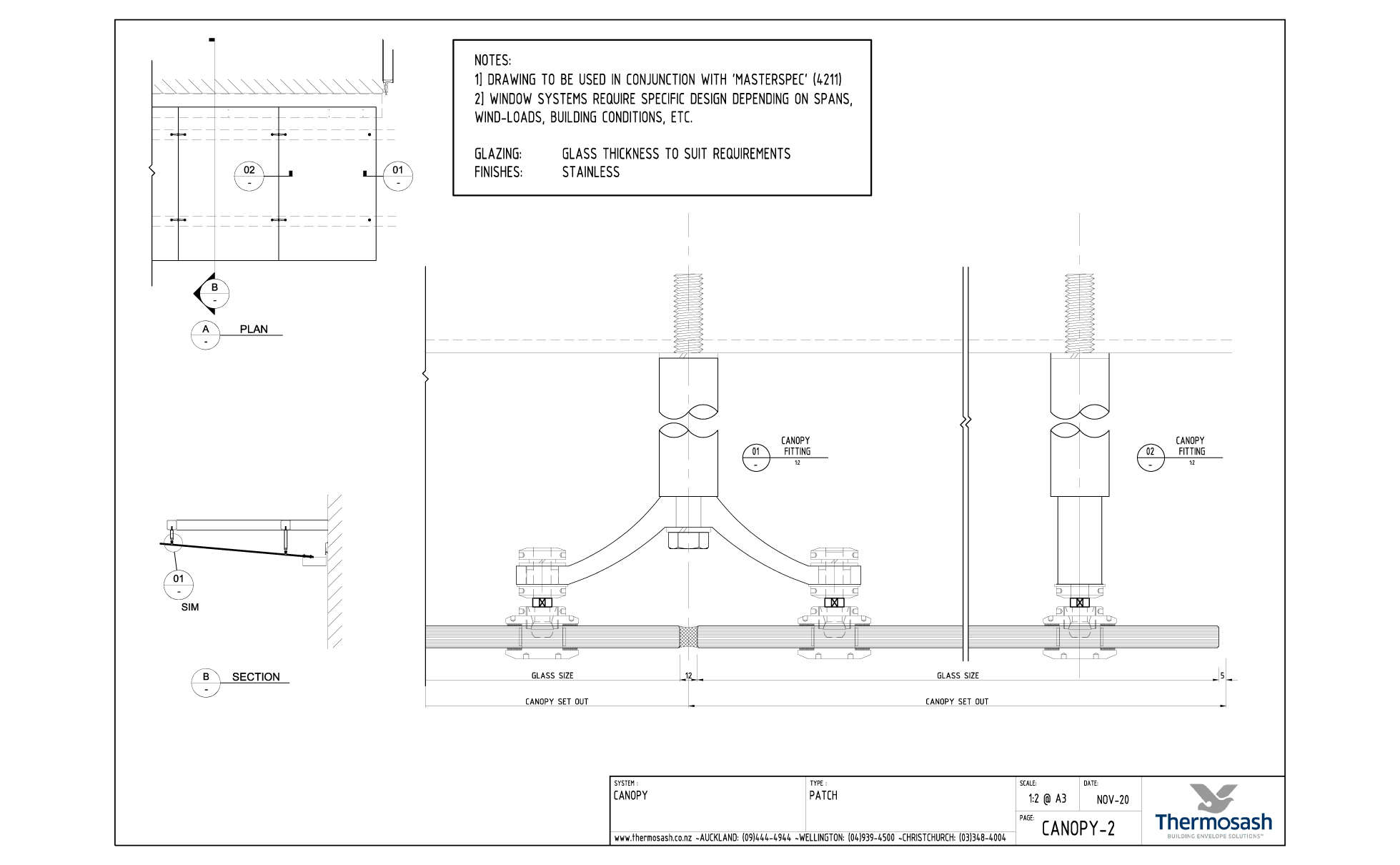
This design style of overhead glazing generally employs spider fittings or engineered fittings that fix back to a primary structure. The engineered fittings require a drilled hole in specific engineered laminated toughened glass that suspends the glass locally at each fixing point. The glass panes are generally clear silicone butt jointed to provide the appearance of a monolithic sheet of glass. Due to potential exposure to high wind, seismic, snow and live loads etc, it is necessary for these types of systems to be specifically designed.

Performance / Testing

  • AS/NZS1170 (Structural Design Actions)
  • NZS4223 (Glazing in Buildings)
  • NZS/AS4284:2008 (Water / Air Pressure/ Air Leakage)

Maximum Spanning Ability

Glass size and primary structure support is your only limitation. We can source your specific glass requirements to meet your project needs.

The spanning ability will vary depending on the structural system and environmental loads (e.g. wind).  Thermosash specifically engineers the best suite options to meet project requirements.

Thermosash Suites are recognized as having the largest spanning systems on the market due to our specific engineering capability and the customised nature of the work we complete.

Warranty

The standard warranty is 10 years from the date of practical completion. This covers workmanship and weather tightness, providing the subcontract includes fabrication, installation and glazing of all components, and the maintenance schedule is adhered to.

Maintenance

Maintaining glass, metals and stone are all particular to the environment that they are placed in: e.g. marine, environmental pollution, exposure to natural washing, etc.

It is recommended by almost all material suppliers that building washing should occur every 3-6 months to prevent staining to glass and prevent environmental pollutants from corroding metals and to maintain the material warranties.

A full maintenance manual is provided on completion of a project for all the elements integrated within a project. Compliance to a maintenance schedule is essential to maintaining the quality of the installed product over time. Using Thermosash-approved facade maintenance contractor/personnel ensures the highest standards are met.

Read more Read less

Key Features

  • Fixing mechanism can be proprietary or bespoke.
  • Almost any type of glass can be incorporated, including ceramic fritting to provide an element of solar shading corporate motif.

Specification

CAD Downloads

Patch Mount Canopy

Download files

Top Mount Canopy

Download files

Finishes

We recommend that all exposed exterior fixings such as spider fittings are stainless steel rated to 316.

Relevant Projects

East on Quay

East on Quay

Auckland

Peddle Thorp Aitken

Multiplex

2005

Royal Sun Alliance

Royal Sun Alliance

Auckland

PTW Architects

J.P Construction

2000

Innovation 5a

Innovation 5a

Auckland

Warren & Mahoney

Hawkins

2017

AUT Business School

AUT Business School

Auckland

Jasmax

Fletcher Construction

2005

Deloitte-Auckland

Deloitte-Auckland

Auckland

Warren and Mahoney, Woods Bagot

Brookfield Multiplex

2010

ANZ (Triangle Building)

ANZ (Triangle Building)

Christchurch

Peddlethorp Architects

Leighs Construction

2017