Rainscreen Systems

Overview

Rainscreen systems provide a critical cladding barrier between the external walls of a building and the weather.  A good system should be energy efficient, versatile, and improve the lifespan of a building’s exterior wall system. 

Pressured Equalised Open Joint Cladding and Fully Flushed Sealed Joint Cladding are cavity systems requiring a rigid air barrier (RAB) behind the cladding, and a suitable structure to hook the cladding onto. These systems are more suited to low rise buildings due to the limitations of RAB, and to buildings requiring overcladding.

A Rainscreen Cassette System has the advantage of being designed as a more adaptable system; it is usually installed over a unitsed wall system that integrates the air seal. Junctions are less complex offering diversity in architectural design with flat or 3D panels incorporating folded ACM, zinc, stainless steel, surface finished aluminium or terracotta.

Thermosash has developed bespoke engineered solutions for each system, please view our Rainscreen product offering for further information.

CAD Downloads

WS1000 - Fully Flushed Sealed Joint Cladding

Download files

RS1000 - Pressure Equalized Open Joint Cladding

Download files

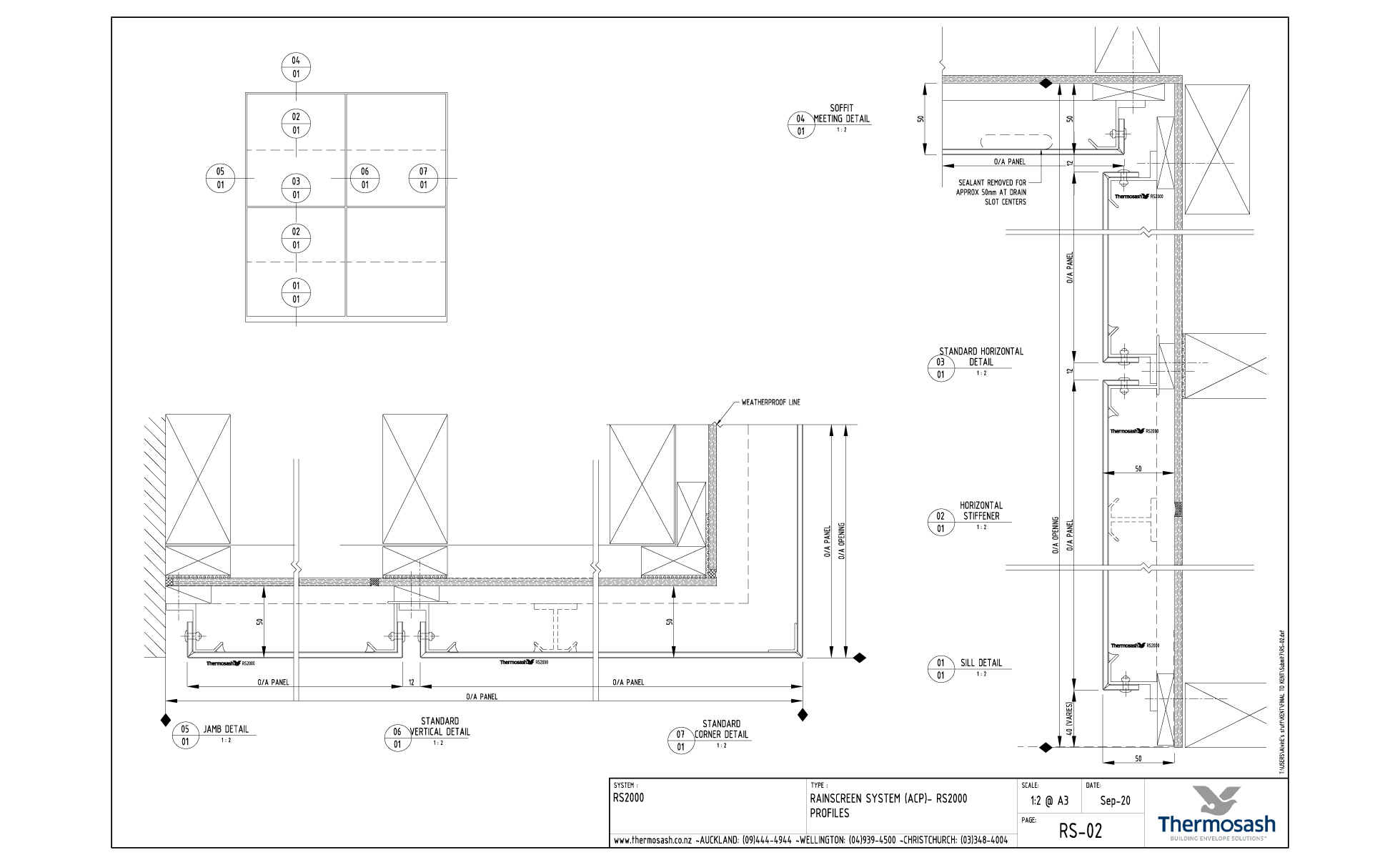
RS2000 - Pressure Equalized Open Joint Cladding

Download files

Relevant Projects

North Shore Elective Unit

North Shore Elective Unit

Auckland

Jasmax

Argon

2013

70 Gloucester Street

70 Gloucester Street

Christchurch

Weir Walker Architects

Ganellen Construction

2014