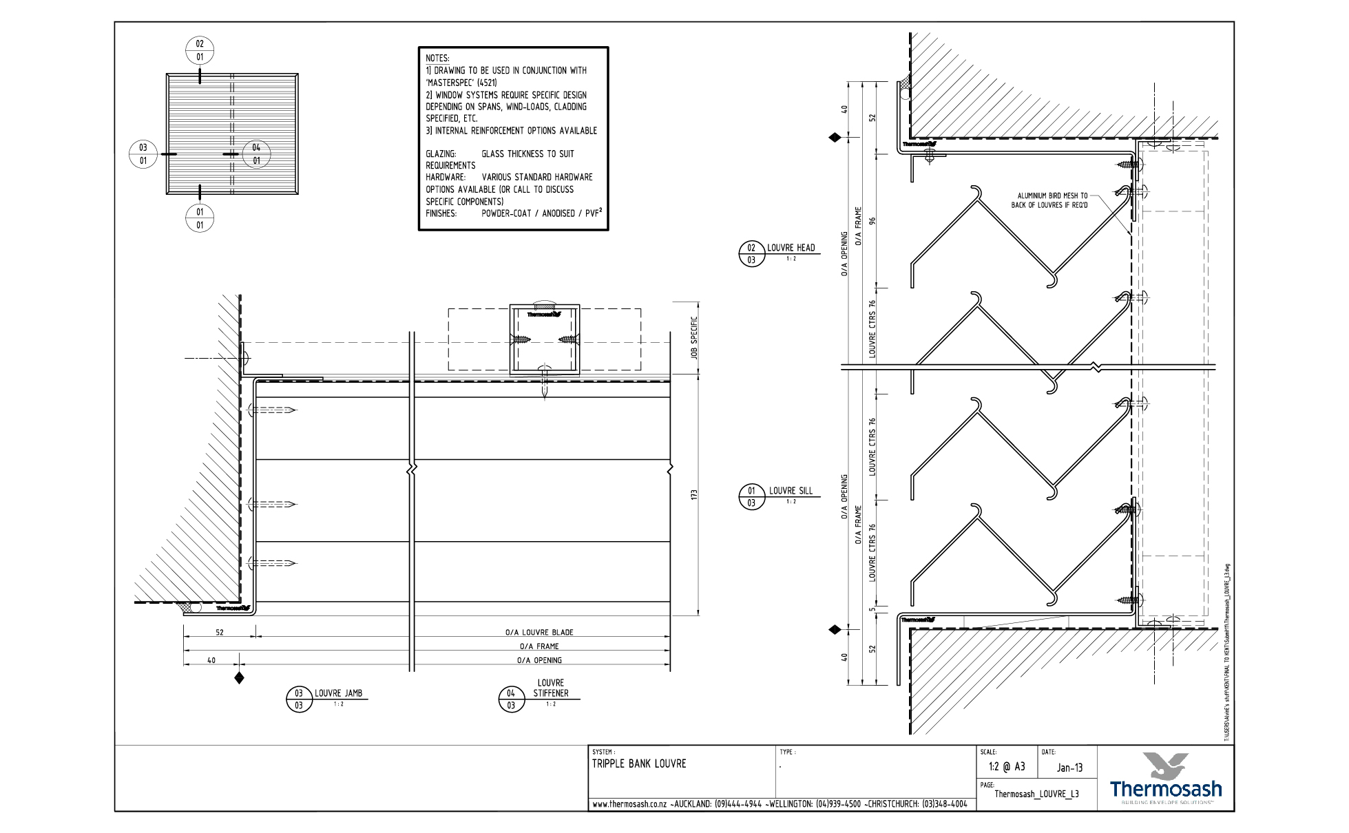
The Thermosash high performance triple bank mechanical air louvre systems integrate into the Thermosash range of curtainwall and commercial window systems for façade integrated mechanical air inlet and extract requirements. These louvres are commonly specified as fresh air inlets for mechanical plant and mechanical plant screening.
Product: MAL-156T | [Type 4]
