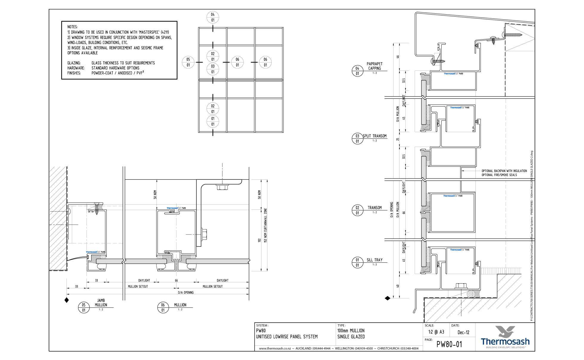
PW80

CAD Downloads

PW80 Downloads

PW80 2 sided flush glazed horizontally - mechanically engaged vertically, suitable for low or high rise applications where small spans or where smaller panes of glass are envisioned.

PW80 - 100mm Mullion Single Glazed

Download files

Thermosash Curtain Wall Fixing Bracket

Download files

Specification

We recommend using Masterspec 4211TS Curtainwall when specifying this suite.

Finishes

  • Polyester powdercoat  - both standard and special colours available
  • Anodised - all anodised colours available - commercial grade 20 Micron finish recommended
  • PVF2 Fluorocarbon finishes - available on request