PW60

CAD Downloads

PW60 Downloads

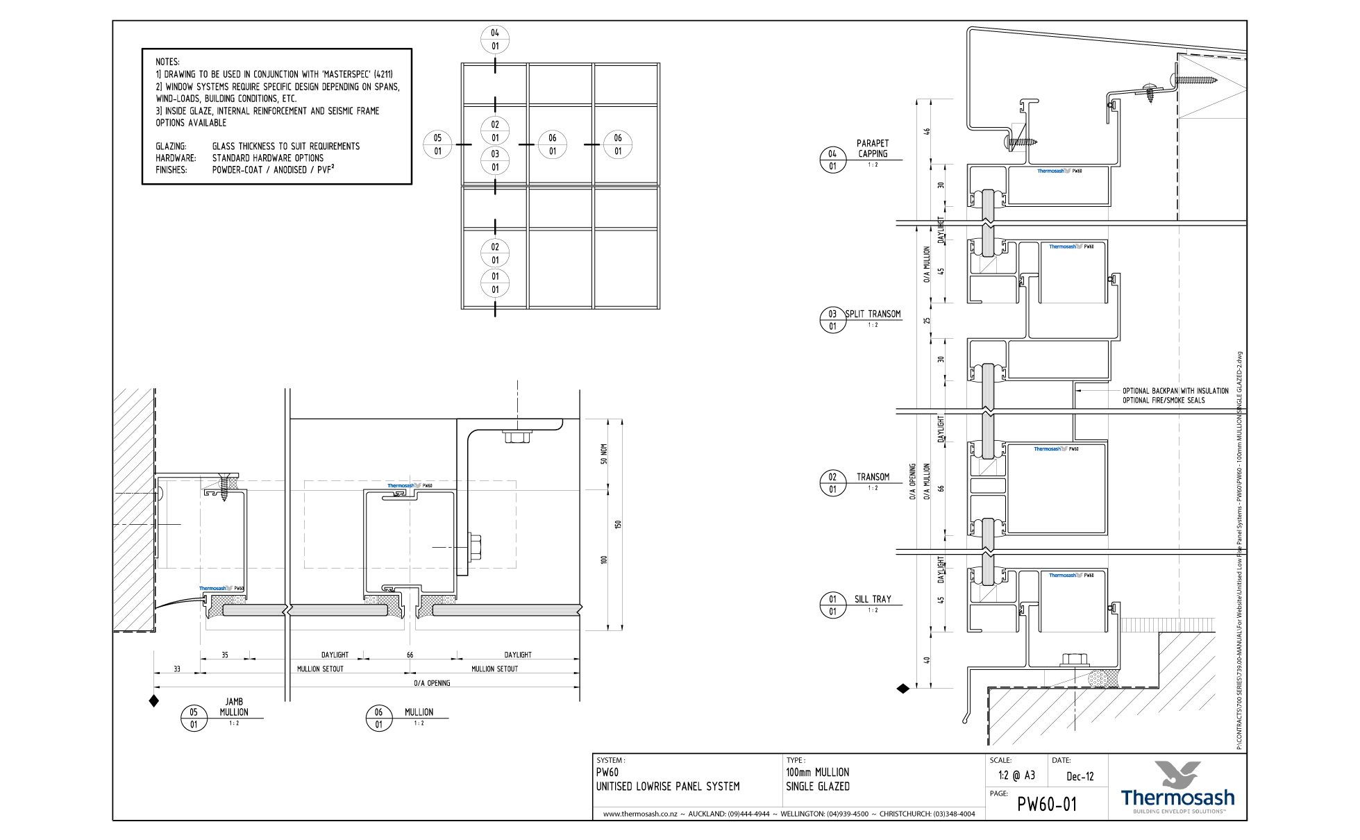
The Thermosash PW60 is a two sided structurally glazed curtainwall with mechanically engaged expressed horizontal transom elements, providing an accent on the horizontal aspect of the building facade.

PW60 - 100mm Mullion Single Glazed

Download files

Thermosash Curtain Wall Fixing Bracket

Download files

Specification

We recommend using Masterspec 4211TS Curtainwall when specifying this suite.

Finishes

  • Polyester powdercoat  - both standard and special colours available
  • Anodised - all anodised colours available - commercial grade 20 Micron finish recommended
  • PVF2 Fluorocarbon finishes - available on request