PW100

CAD Downloads

PW100 Downloads

The Thermosash PW100 is a four sided structurally glazed curtainwall suite suitable for low or high rise applications where small spans or where smaller panes of glass are envisioned.

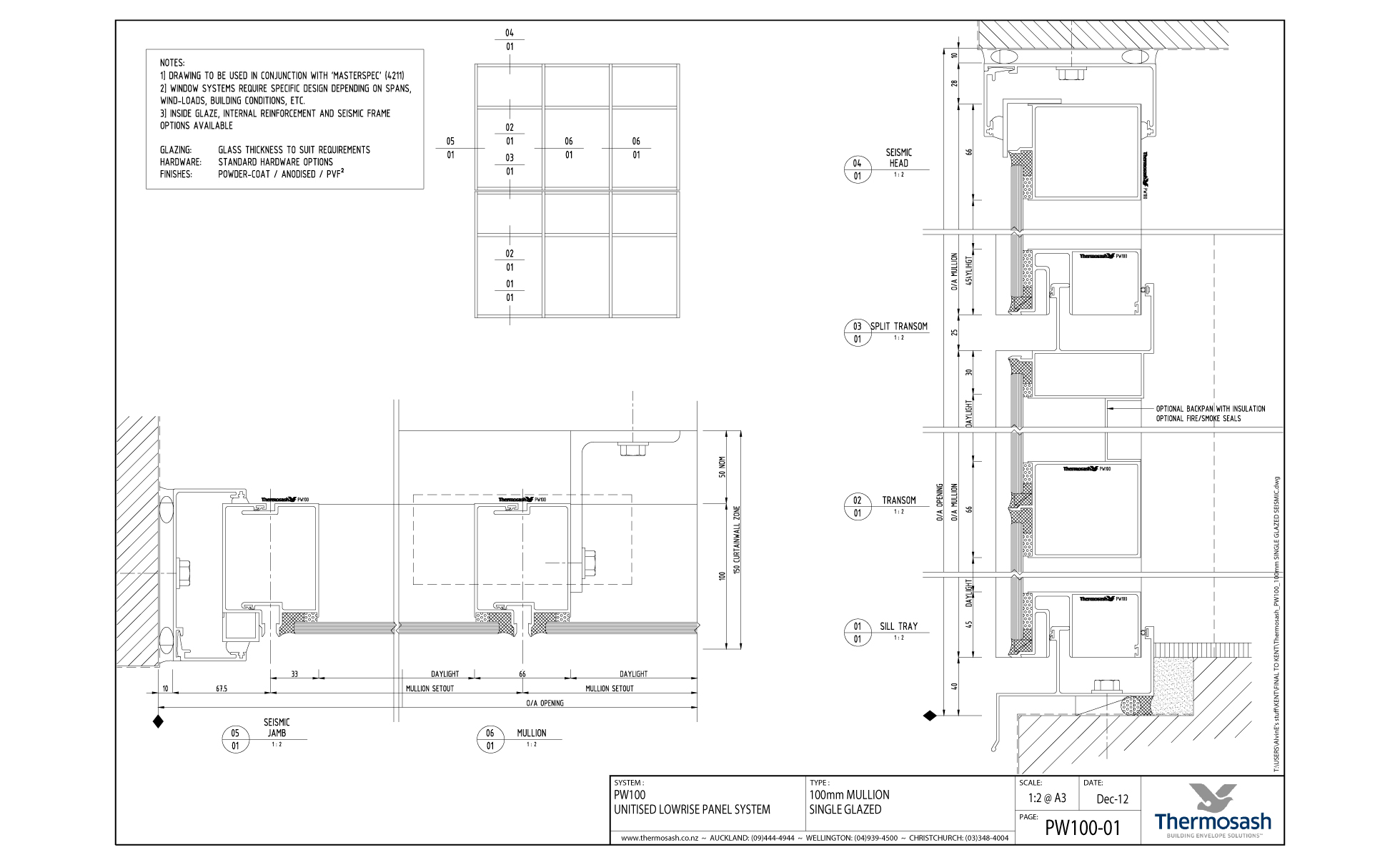
PW100 - 100mm Mullion Single Glazed

Download files

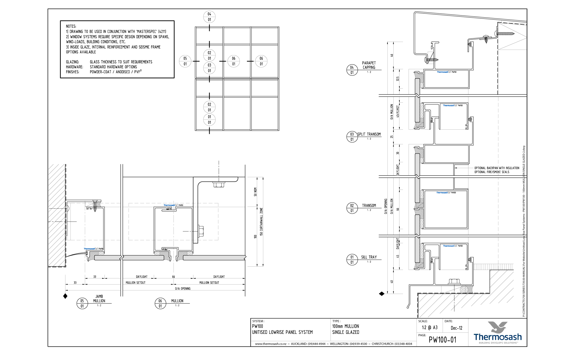
PW100 - 100mm Mullion Single Glazed with Seismic Head

Download files

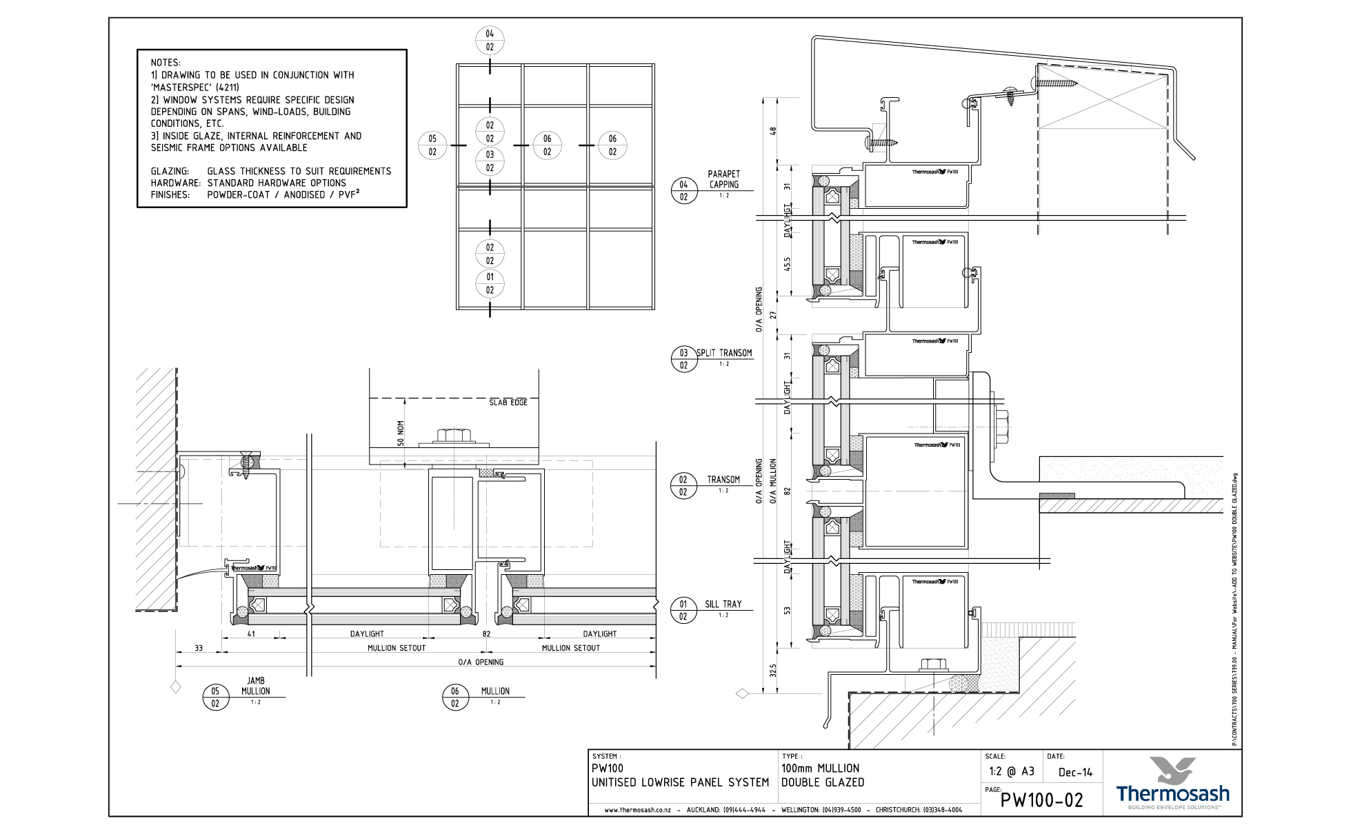
PW100 - 100mm Mullion Double Glazed

Download files

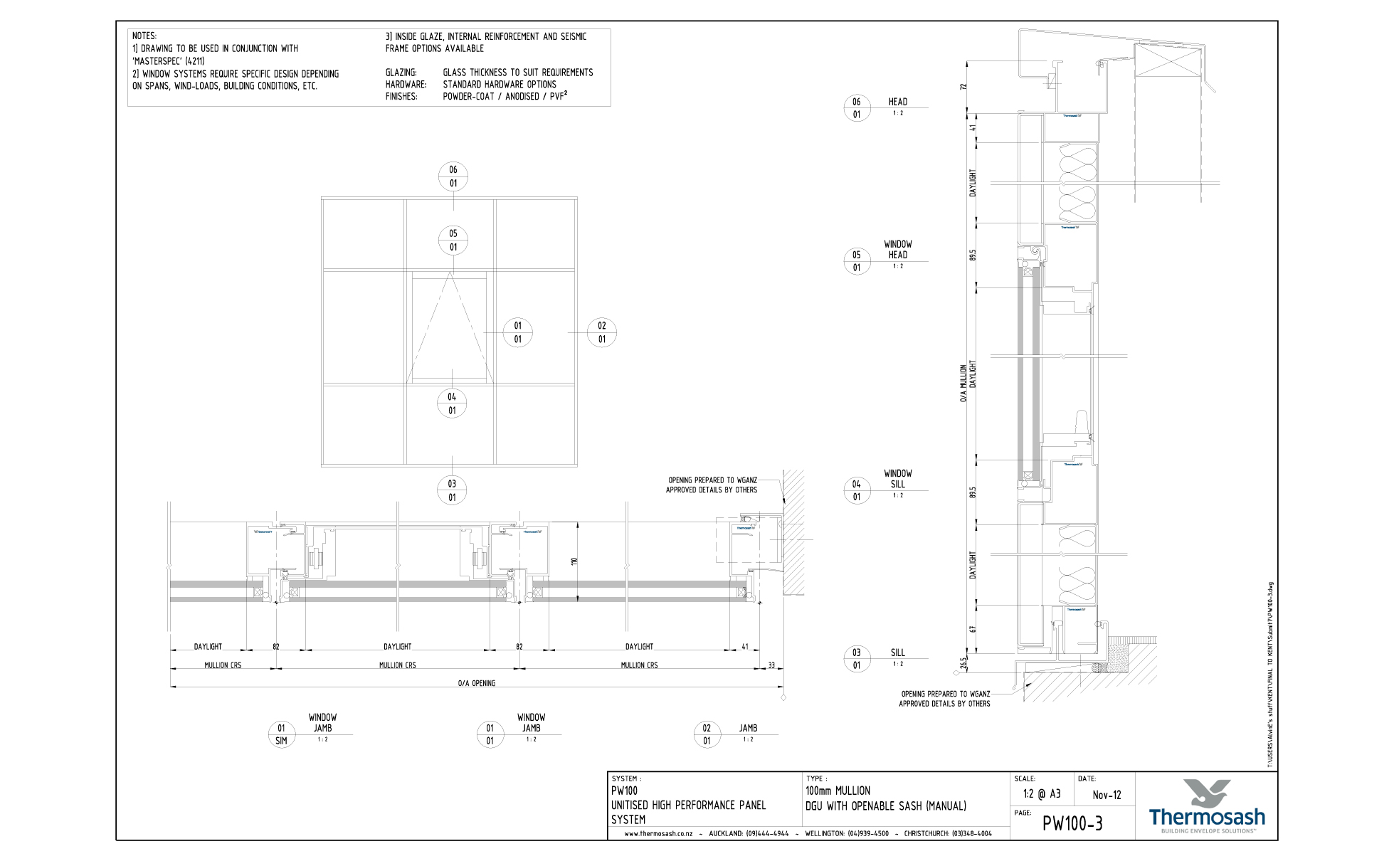
PW100 - 100mm Mullion Double Glazed with Manual Operable Sash

Download files

Thermosash Curtain Wall Fixing Bracket

Download files

Specification

We recommend using Masterspec 4211TS Curtainwall when specifying this suite.

Finishes

  • Polyester powdercoat  - both standard and special colours available
  • Anodised - all anodised colours available - commercial grade 20 Micron finish recommended
  • PVF2 Fluorocarbon finishes - available on request